立即预约 立即预约
免费定制整装家居

免费定制整装家居

一站置家 全程无忧 一省到底
hide.png

当前位置: 首页 > 装修案例效果图 > 万科翡翠公园

万科翡翠公园 125平 现代简约风格效果图

收藏
案例风格 现代简约 案例户型 三居 案例面积 125平米
楼盘名称 万科翡翠公园 设计师 林凤全案整装设计师 案例类型 改善性住宅

设计理念:用心设计,追求现代极致的美

客厅
第1张
第2张
餐厅
第1张
卧室
第1张
第2张
卫生间
第1张
厨房
第1张
书房
第1张
第2张
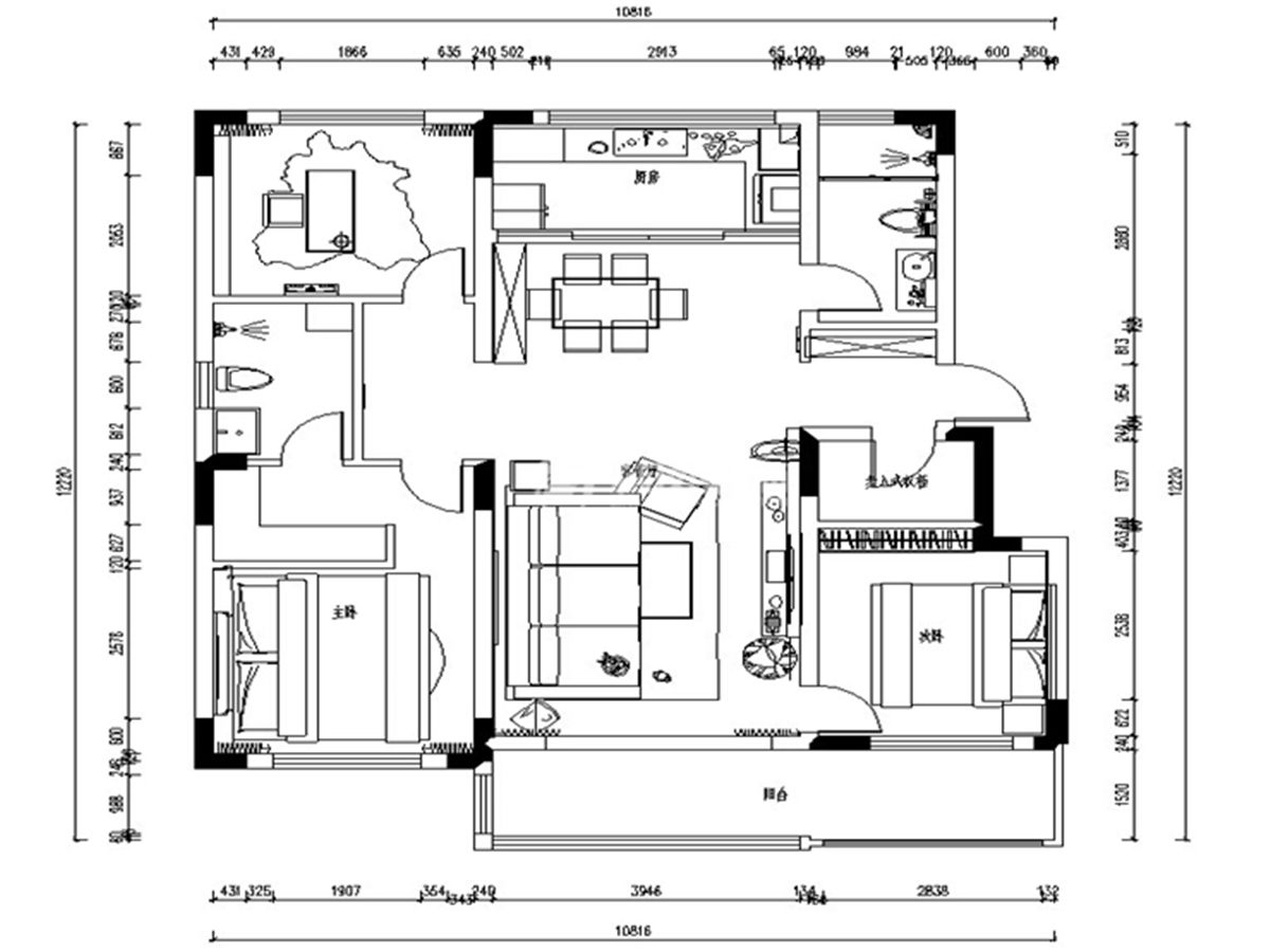
户型图
第1张
  • 案例详情

万科翡翠公园-125平-现代-客厅.jpg 万科翡翠公园-125平-现代-首图.jpg

万科翡翠公园125平3居室现代风格林凤装饰的客厅整体色调为黑白灰,爵士白理石背景墙搭配灰黑色沙发增强了房间的对比度,更显高级

万科翡翠公园-125平-现代-餐厅.jpg

万科翡翠公园125平3居室现代风格林凤装饰的餐厅简洁大方,十分明朗

万科翡翠公园-125平-现代-卧室1.jpg 万科翡翠公园-125平-现代-卧室2.jpg

万科翡翠公园125平3居室现代风格林凤装饰的卧室家具富有时尚感,现代气息明显。床头灯事卧室看起来更加温馨和谐。

万科翡翠公园-125平-现代-卫生间.jpg

万科翡翠公园125平3居室现代风格林凤装饰的卫生间干湿分离,实用性强。墙砖以爵士白为主,使空间更加简洁明亮

万科翡翠公园-125平-现代-厨房.jpg

万科翡翠公园125平3居室现代风格林凤装饰的厨房透明拉门现代感十足,可以清晰的看到厨房外的景象,橱柜色彩清新活泼,符合业主的要求。

万科翡翠公园-125平-现代-书房1.jpg 万科翡翠公园-125平-现代-书房2.jpg

万科翡翠公园125平3居室现代风格林凤装饰的书房

万科翡翠公园-125平-现代-平面布置图.jpg

案例设计师

林凤全案整装设计师

设计师:林凤全案整装设计师

从业时间:10年

设计理念:艺术是生活的升华,设计是艺术的呈现

预约设计师

算算你家装修多少钱

报名即享丰厚赠品,品质装修

免费报价
咨询热线:400-656-9909
20190221103704574636.jpg

精品设计案例

20180612134930523248.jpg 服务号二维码.jpg