立即预约 立即预约
免费定制整装家居

免费定制整装家居

一站置家 全程无忧 一省到底
hide.png

当前位置: 首页 > 装修案例效果图 > 金地艺境

金地艺境 85平 美式风格效果图

收藏
案例风格 美式 案例户型 二居 案例面积 85平米
楼盘名称 金地艺境 设计师 林凤全案整装设计师 案例类型 改善性住宅

设计理念:美式轻奢是以美式家具和轻奢饰品相呼应而带来的自由感,则让这美好的空间呈现出一副画,正如业主给设计师的感觉,低调、有气质。

客厅
第1张
第2张
第3张
餐厅
第1张
卧室
第1张
第2张
卫生间
第1张
厨房
第1张
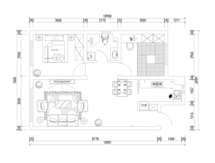
户型图
第1张
  • 案例详情

金地艺境-85平-美式轻奢-客厅1.jpg 金地艺境-85平-美式轻奢-客厅.jpg 金地艺境-85平-美式轻奢-首图.jpg

金地艺境85平2居室美式轻奢风格林凤装饰的客厅的整体布局设计师按常规摆放,电视背景墙采用石膏线和玫瑰金装饰条设计,美丽大方,简单有内涵。沙发背景墙采用宽边原木色装饰画,显得美式的厚重感,更能体现业主的厚德真实的性格。

金地艺境-85平-美式轻奢-门厅.jpg

金地艺境85平2居室美式轻奢风格林凤装饰的餐厅区域是和客厅同实贯穿到整个一个空间,彰显整个空间大气,更能使空间一体,餐厅主要靠周边的环境灯衬托,能体现出就餐的氛围。

金地艺境-85平-美式轻奢-次卧室.jpg 金地艺境-85平-美式轻奢-主卧室.jpg

【主卧室说明】宽敞的卧室空间才是提高舒适度最好的选择,灯具在空间内起到了气氛的点缀作用。卧室空间与客厅空间大体相似,但多出一些亮色,这些亮色会在清晨使人心情舒畅,缓解业主心情,空间内不需太多装饰性柜子。

金地艺境-85平-美式轻奢-卫生间.jpg

金地艺境85平2居室美式轻奢风格林凤装饰的卫生间用了墨绿和象牙灰的瓷砖铺满了整个空间比较有层次感,显示出美式的空间感,美丽大方。回归自然之美

金地艺境-85平-美式轻奢-厨房.jpg

金地艺境85平2居室美式轻奢风格林凤装饰的厨房是封闭式厨房,由于空间问题,冰箱的位置与门厅的鞋柜互通这样的能接射空间,又能保证冰箱在厨房内,橱柜胡桃木色能与整个客厅餐厅融合在一起,整个空间贯穿成一体。完美

金地艺境-85平-美式轻奢-平面布置图.jpg

案例设计师

林凤全案整装设计师

设计师:林凤全案整装设计师

从业时间:10年

设计理念:艺术是生活的升华,设计是艺术的呈现

预约设计师

算算你家装修多少钱

报名即享丰厚赠品,品质装修

免费报价
咨询热线:400-656-9909
20190221103704574636.jpg

精品设计案例

20180612134930523248.jpg 服务号二维码.jpg