立即预约 立即预约
免费定制整装家居

免费定制整装家居

一站置家 全程无忧 一省到底
hide.png

当前位置: 首页 > 装修案例效果图 > 华润二十四城

华润二十四城 150平 轻奢风格效果图

收藏
案例风格 轻奢 案例户型 四居 案例面积 150平米
楼盘名称 华润二十四城 设计师 林凤设计师 案例类型 改善性住宅

设计理念:整体设计是以轻奢造型,现代家具为主,整个空间设计明亮大方,没有风格的局限性。

客厅
第1张
第2张
餐厅
第1张
卧室
第1张
卫生间
第1张
厨房
第1张
门厅
第1张
过廊
第1张
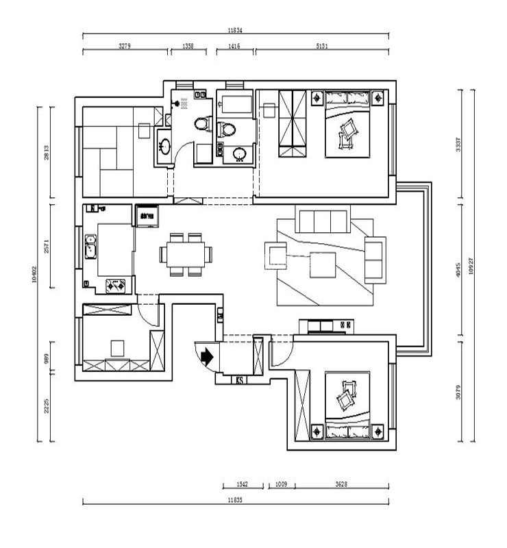
户型图
第1张
  • 案例详情

华润二十四城-150平-现代美式-电视背景墙.jpg 华润二十四城-150平-现代美式-客厅.jpg

华润二十四城140平4居室轻奢风格林凤装饰的客厅以现代为主,美式为辅,家具材质采用现代家具,增加家里现代的感觉,棚面与墙面都做了美式经典造型,墙面采用了新颖蓝灰色护墙板,让整体空间显得不那么古板,让整个客厅空间大气稳重,又略显时尚.

华润二十四城-150平-现代美式-餐厅.jpg

华润二十四城140平4居室轻奢风格林凤装饰的餐厅空间,但是餐厅背景墙空间比较小,还有一个门的,因此在背景墙的位置坐了一个隐藏门,棚顶和地面造型呼应,餐边柜做了金属的隔断,让主人用餐更加有一种愉悦的心情!

华润二十四城-150平-现代美式-主卧室.jpg

华润二十四城140平4居室轻奢风格林凤装饰的卧室空间墙面采用白色为主色调,孔雀蓝为点最色,同时让空间显的死板,让卧室空间温馨的同事又有提亮色。

华润二十四城-150平-现代美式-卫生间.jpg

华润二十四城140平4居室轻奢风格林凤装饰的卫生间空间,采用爵士白的大理石纹瓷砖,配合金属线条的柜子,在视觉上让卫生间的空间显得更加精致。让空间更加干净高端大气。

华润二十四城-150平-现代美式-厨房.jpg

华润二十四城140平4居室轻奢风格林凤装饰的厨房的墙地砖为淡灰色,橱柜采用上浅下深的配色,让空间更有层次感。

华润二十四城-150平-现代美式-门厅.jpg

华润二十四城140平4居室轻奢风格林凤装饰的玄关

华润二十四城-150平-现代美式-过廊.jpg

华润二十四城140平4居室轻奢风格林凤装饰的过廊

华润二十四城-150平-现代美式-平面图.jpg

案例设计师

林凤设计师

设计师:林凤设计师

从业时间:7年

设计理念:设计源于生活 且高于生活

预约设计师

算算你家装修多少钱

报名即享丰厚赠品,享半价装修

免费报价
咨询热线:400-656-9909
20190221103704574636.jpg

精品设计案例

20180612134930523248.jpg 服务号二维码.jpg