立即预约 立即预约
免费定制整装家居

免费定制整装家居

一站置家 全程无忧 一省到底
hide.png

当前位置: 首页 > 装修案例效果图 > 华润奉天九里

华润奉天九里 145平 现代简约风格效果图

收藏
案例风格 现代简约 案例户型 三居 案例面积 145平米
楼盘名称 华润奉天九里 设计师 林凤设计师 案例类型 改善性住宅

设计理念:本案以直线条的吊棚搭配黑白灰三原色的组合,呈现出一个属于业主专属的后现代风格。

客厅
第1张
第2张
第3张
餐厅
第1张
第2张
卧室
第1张
卫生间
第1张
厨房
第1张
过廊
第1张
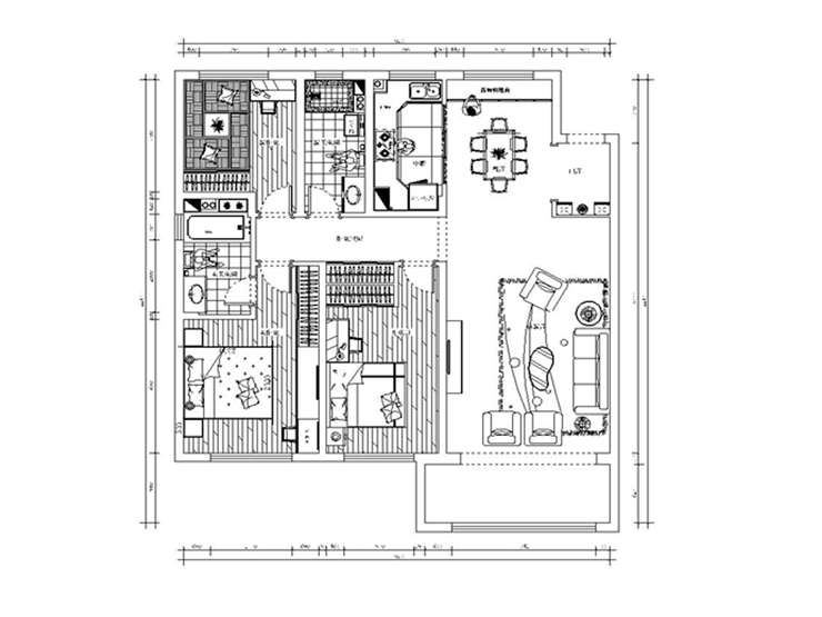
户型图
第1张
  • 案例详情

奉天九里-145平-后现代风格-客厅 (8).jpg 奉天九里-145平-后现代风格-客厅 (4).jpg 奉天九里-145平-后现代风格-客厅 (3).jpg

客厅以灰色壁纸搭配冷色系组合式沙发,凸显客厅简约的同时搭配出房间的层次感。

奉天九里-145平-后现代风格-餐厅.jpg 奉天九里-145平-后现代风格-餐厅1.jpg

:餐厅以现代的人造理石餐桌搭配布艺餐椅,以咖啡色壁纸做基本,一副黑色的装饰画凸显主人品味。

奉天九里-145平-后现代风格-卧室.jpg

主卧室以软包背景墙搭配布艺床品,舒适与设计兼得。

奉天九里-145平-后现代风格-卫生间.jpg

卫生间以整体的亚光地砖上墙搭配拼花造型设计,突出卫生间的现代设计感。

奉天九里-145平-后现代风格-厨房.jpg

厨房烤漆橱柜搭配马赛克设计出厨房的层级感与设计感。

奉天九里-145平-后现代风格-过廊.jpg 奉天九里-145平-后现代风格-户型图.jpg

案例设计师

林凤设计师

设计师:林凤设计师

从业时间:10年

设计理念:用心观察生活,感悟人生真谛,让设计与生活互动。

预约设计师

算算你家装修多少钱

报名即享丰厚赠品,享半价装修

免费报价
咨询热线:400-656-9909
20190221103704574636.jpg

精品设计案例

20180612134930523248.jpg 服务号二维码.jpg