立即预约 立即预约
免费定制整装家居

免费定制整装家居

一站置家 全程无忧 一省到底
hide.png

当前位置: 首页 > 装修案例效果图 > 奕聪花园

奕聪花园 180平 欧式风格效果图

收藏
案例风格 欧式 案例户型 三居 案例面积 180平米
楼盘名称 奕聪花园 设计师 林凤装饰 案例类型 改善性住宅

设计理念:本案以欧式元素为主,用对比的颜色为空间营造了另一种美,选用现代感较强烈的家具和配饰,使空间抽象明快,增加了千姿百态的生活乐趣。

客厅
第1张
第2张
第3张
第4张
餐厅
第1张
卧室
第1张
卫生间
第1张
厨房
第1张
门厅
第1张
过廊
第1张
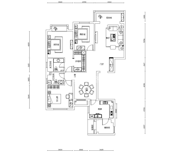
户型图
第1张
奕聪花园-180平-欧式风格-客厅.jpg 奕聪花园-180平-欧式风格-客厅2.jpg 奕聪花园-180平-欧式风格-客厅3.jpg 奕聪花园-180平-欧式风格-首图.jpg

奕聪花园180平3居室欧式风格林凤装饰的客厅大面积以蓝灰色为主调,电视背景运用了对称形式的石膏线为边,理石和壁纸为重点,沙发背景一样运用了对称的形式和电视背景墙呼应,加上地面地心和吊棚的结合,为整个空间增加了艺术氛围,同时凸显了主人的文化素养。

奕聪花园-180平-欧式风格-餐厅.jpg

奕聪花园180平3居室欧式风格林凤装饰的餐厅以圆桌的形式呈现,地面以圆形地心为亮点,又加上方形的圈边与吊棚的结合,以及棚顶镜面的反射效果使空间更有层次。

奕聪花园-180平-欧式风格-卧室.jpg

奕聪花园180平3居室欧式风格林凤装饰的主卧整体暖灰色为主调,局部床品运用蓝灰色作为跳色。床头背景选用硬包抽缝的设计方案,是空间更有线条感,加上灯具的环绕感觉配上台灯的点缀色,为空间营造了简约而不简单的效果。

奕聪花园-180平-欧式风格-卫生间.jpg

奕聪花园180平3居室欧式风格林凤装饰的卫生间墙面瓷砖采用鱼肚白,浴缸选择砌筑形式,和左边的玻璃浴屏形成了一虚一实的鲜明对比,是整体空间感觉更加干净整洁。马桶上方的挂画解决了卫生间色彩单一的问题,增加空间的温度。

奕聪花园-180平-欧式风格-厨房.jpg

奕聪花园180平3居室欧式风格林凤装饰的厨房以灰色打底,简洁大方,主操作台区域选用花色墙砖,和背景灰色墙砖 相互呼应 巧妙的用墙体颜色突出了整体空间,让居家生活的贴心快乐。

奕聪花园-180平-欧式风格-玄关.jpg

奕聪花园180平3居室欧式风格林凤装饰的玄关

奕聪花园-180平-欧式风格-过廊.jpg

奕聪花园180平3居室欧式风格林凤装饰的过廊

奕聪花园-180平-欧式风格-平面.jpg

案例设计师

林凤装饰

设计师:林凤装饰

从业时间:8年

设计理念:人为生活而设计,设计为生活而存在

预约设计师

算算你家装修多少钱

报名即享丰厚赠品,品质装修

免费报价
咨询热线:400-656-9909
20190221103704574636.jpg

精品设计案例

20180612134930523248.jpg 服务号二维码.jpg