立即预约 立即预约
免费定制整装家居

免费定制整装家居

一站置家 全程无忧 一省到底
hide.png

当前位置: 首页 > 装修案例效果图 > 华润翡翠城

华润翡翠城 100平 现代简约风格效果图

收藏
案例风格 现代简约 案例户型 三居 案例面积 100平米
楼盘名称 华润翡翠城 设计师 林凤设计师 案例类型 改善性住宅

设计理念:以当下最流行的材质,打造一个别有韵味的现代简约风格

客厅
第1张
第2张
第3张
第4张
餐厅
第1张
第2张
卧室
第1张
卫生间
第1张
厨房
第1张
衣帽间
第1张
过廊
第1张
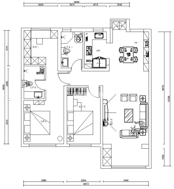
户型图
第1张
  • 案例详情

华润翡翠城-100㎡-现代风格-客厅.jpg 华润翡翠城-100㎡-现代风格-客厅2.jpg 华润翡翠城-100㎡-现代风格-客厅3.jpg 华润翡翠城-100㎡-现代风格-首图.jpg

华润翡翠城100平3居室现代风格林凤装饰的客厅电视背景墙,选择定制的墙板为主,墙面有两种颜色,墨绿色及灰色的搭配。

华润翡翠城-100㎡-现代风格-餐厅.jpg 华润翡翠城-100㎡-现代风格-餐厅2.jpg

华润翡翠城100平3居室现代风格林凤装饰的餐厅整体的设计,来源于棚顶的灯光,采用无主灯的设计,让夜晚家人一起共进晚餐时,更加别有韵味,家具的选择上,已皮质的椅子,及理石的台面。

华润翡翠城-100㎡-现代风格-主卧室.jpg

华润翡翠城100平3居室现代风格林凤装饰的主卧室床头背景墙,采用地板整体上墙,作为卧室的主体,其他墙面均选择乳胶漆调色。

华润翡翠城-100㎡-现代风格-主卫生间.jpg

华润翡翠城100平3居室现代风格林凤装饰的卫生间墙面已地砖上墙为主,选择金意陶仿古砖系列,更加的凸显风格韵味

华润翡翠城-100㎡-现代风格-厨房.jpg

华润翡翠城100平3居室现代风格林凤装饰的厨房以U型设计,深灰色的墙砖,搭配上双饰面乳白色为主的橱柜,打造现代简约风格

华润翡翠城-100㎡-现代风格-衣帽间.jpg

华润翡翠城100平3居室现代风格林凤装饰的衣帽间

华润翡翠城-100㎡-现代风格-过廊.jpg

华润翡翠城100平3居室现代风格林凤装饰的过廊

华润翡翠城-100㎡-现代风格-平面图.jpg

案例设计师

林凤设计师

设计师:林凤设计师

从业时间:7年

设计理念:人为生活而设计,设计为生活而存在。

预约设计师

算算你家装修多少钱

报名即享丰厚赠品,享半价装修

免费报价
咨询热线:400-656-9909
20190221103704574636.jpg

精品设计案例

20180612134930523248.jpg 服务号二维码.jpg