立即预约 立即预约
免费定制整装家居

免费定制整装家居

一站置家 全程无忧 一省到底
hide.png

当前位置: 首页 > 装修案例效果图 > 阳光100果岭公馆

阳光100果岭公馆 144平 北欧风格效果图

收藏
案例风格 北欧 案例户型 三居 案例面积 144平米
楼盘名称 阳光100果岭公馆 设计师 高阳 案例类型 改善性住宅

设计理念:以简约的表现形式来满足人们对于简约却不简单的居室环境的要求,由于现代人快节奏、高频率以及满负荷的生活节奏,导致了人们需要在一天的工作之余,想要得到一个简约型的空间来得到一个心灵的放松,希望能够在家中摆脱世俗的繁琐、复杂并且追求简单、自然的的生活状态。

客厅
第1张
第2张
第3张
餐厅
第1张
卧室
第1张
第2张
第3张
卫生间
第1张
厨房
第1张
过廊
第1张
第2张
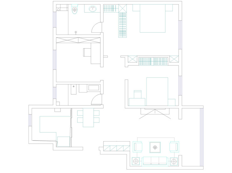
户型图
第1张
  • 案例详情

阳光100果岭公馆-144平-北欧风格 -客厅.jpg 阳光100果岭公馆-144平-北欧风格-客厅.jpg 阳光100果岭公馆-144平-北欧风格 -客厅 (2).jpg

阳光100果岭公馆144平3居室北欧风格林凤装饰的客厅主要以棕色为主,打造出一种沉稳舒适的空间体验,棕色沙发以及棕色木纹墙相互照应,再搭配上白色大理石质感的电视柜,打破沉重,让人感觉超有安全感,在这样的空间内,能够消散掉所有疲惫,给人一个安静祥和的空间。

阳光100果岭公馆-144平-北欧风格 -餐厅.jpg

阳光100果岭公馆144平3居室北欧风格林凤装饰的餐厅整体并不像客厅餐厅选择的是深色装修,而是大面积选用白色,整体看上去时尚大气,中间还打造了一个吧台空间,平时两个人吃饭的时候就可以直接在这里解决。

阳光100果岭公馆-144平-北欧风格 -卧室 (2).jpg 阳光100果岭公馆-144平-北欧风格 -卧室.jpg 阳光100果岭公馆-144平-北欧风格-卧室.jpg

阳光100果岭公馆144平3居室北欧风格林凤装饰的卧室是休息的地方,原木色能让人感到心情舒畅,灰色调的床头背景搭配原木色的床头,使空间整体感更强,达到了业主想要的效果 。

阳光100果岭公馆-144平-北欧风格-卫生间.jpg

阳光100果岭公馆144平3居室北欧风格林凤装饰的卫生间采用灰色大理石洗漱台,搭配上木质橱柜,弱化大理石带来的冷酷感,让整个空间变得柔和了不少。

阳光100果岭公馆-144平-北欧风格 -厨房.jpg

阳光100果岭公馆144平3居室北欧风格林凤装饰的厨房和餐厅一体式设计

阳光100果岭公馆-144平-北欧风格 -过廊.jpg 阳光100果岭公馆-144平-北欧风格-过廊.jpg

阳光100果岭公馆144平3居室北欧风格林凤装饰的过廊

阳光100果岭公馆-144平-北欧风格-平面图.jpg

案例设计师

高阳

设计师:高阳

从业时间:11年

设计理念:有限空间、无限设计。

预约设计师

算算你家装修多少钱

报名即享丰厚赠品,品质装修

免费报价
咨询热线:400-656-9909
20190221103704574636.jpg

精品设计案例

20180612134930523248.jpg 服务号二维码.jpg