立即预约 立即预约
免费定制整装家居

免费定制整装家居

一站置家 全程无忧 一省到底
hide.png

当前位置: 首页 > 装修案例效果图 > 良城美景

良城美景 97平 现代简约风格效果图

收藏
案例风格 现代简约 案例户型 三居 案例面积 97平米
楼盘名称 良城美景 设计师 林凤设计师 案例类型 改善性住宅

设计理念:本案是现代风格,最大的亮点在于将老式厨房做成开敞中西厨,利用原木色定制柜体与护墙板打造出厨房与客厅餐厅相互交错连接的结构关系。本案主体颜色选用淡灰色,搭配白色木门与踢脚线营造出干净、明朗、静谧的室内感觉,加入橙色作为跳色,让人回到家里就有一种放松的心情,很适合两个年轻人。

客厅
第1张
第2张
第3张
餐厅
第1张
卧室
第1张
卫生间
第1张
第2张
厨房
第1张
门厅
第1张
过廊
第1张
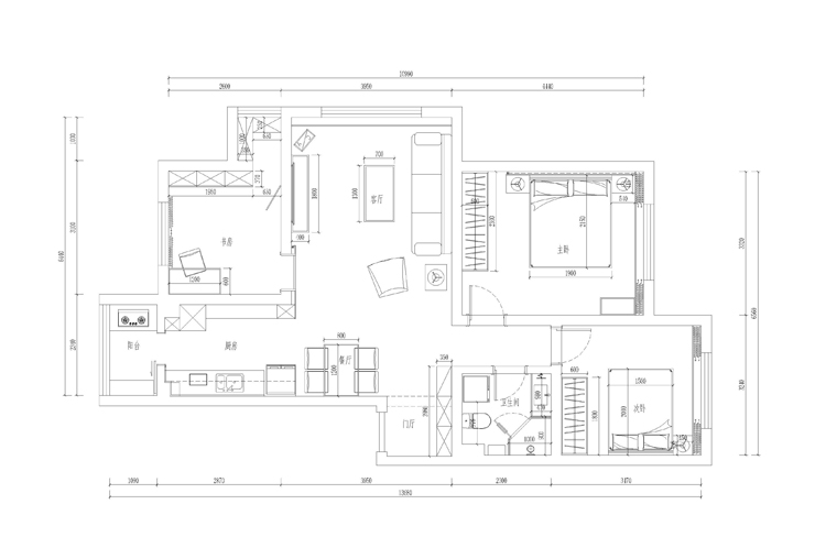
户型图
第1张
  • 案例详情

良城美景-97平-现代风格-客厅.jpg 良城美景-97平-现代风格-客餐厅.jpg 良城美景-97平-现代风格-首图.jpg

良城美景97平3居室现代风格林凤装饰的客厅由于将厨房打开做成了开敞厨房,原始举架也不高的情况下,直接利用过廊和厨房的吊棚围合出客厅的天花区域。电视背景墙上有一个北卧室的门,导致背景墙的中轴线不居中,利用西厨的高柜同样的材质转过来,将北卧室的门处理为隐形门,以护墙板围合,打造出自然的背景墙区域。空调是业主家原有空调,从公司选择了大小刚刚合适的电视柜,使整个电视背景墙呈现出自然饱满的格局。

良城美景-97平-现代风格-餐厅 (2).jpg

良城美景97平3居室现代风格林凤装饰的餐厅餐桌深木色家具与客厅相呼应,餐厅的棚顶与厨房棚顶一体平棚,加强空间延伸感,没有了阻挡,空间显得更加开阔。色系加深,突出餐厅的主体地位。

良城美景-97平-现代风格-卧室.jpg

良城美景97平3居室现代风格林凤装饰的卧室整体墙面延续客厅的浅灰色乳胶漆,床头背景墙用石膏板做了凸起造型,并藏有虚光灯带作为辅助光源,营造极其温馨的卧室氛围。照明的选择摒弃了压抑的主灯,取而代之的是明装筒灯,并且分两路做了双控,使卧室光源富有变化。

良城美景-97平-现代风格-卫生间 (2).jpg 良城美景-97平-现代风格-卫生间.jpg

良城美景97平3居室现代风格林凤装饰的卫生间墙面以灰色理石纹理为准,搭配白色洗漱柜,空间显得干净,时尚,干湿分离的设计让卫生间的使用率得到放大,不会因为同时使用而显得拥挤。定制浴屏加长了浴屏的边长,与浴室柜更好的结合。

良城美景-97平-现代风格-餐厅.jpg

良城美景97平3居室现代风格林凤装饰的厨房最大的改动是把灶具挪到了北阳台,拓展了北阳台的功能,使油烟更加远离客厅。外边放置冰箱的一侧作为备餐区,设有洗菜槽,下边配备洗碗机,增加生活便捷度。原木色橱柜作为西厨区,柜子做薄,使过道开阔,动线方便合理。西厨预留了很多电源,可以放很多小家电,将厨房的功能区做了更细的划分。

良城美景-97平-现代风格-卫生间(3).jpg

良城美景97平3居室现代风格林凤装饰的玄关

良城美景-97平-现代风格-过廊.jpg

良城美景97平3居室现代风格林凤装饰的过廊

户型图.jpg

案例设计师

林凤设计师

设计师:林凤设计师

从业时间:8年

设计理念:一切随心,用心去感悟空间

预约设计师

算算你家装修多少钱

报名即享丰厚赠品,享半价装修

免费报价
咨询热线:400-656-9909
20190221103704574636.jpg

精品设计案例

20180612134930523248.jpg 服务号二维码.jpg