立即预约 立即预约
免费定制整装家居

免费定制整装家居

一站置家 全程无忧 一省到底
hide.png

当前位置: 首页 > 装修案例效果图 > 碧桂园繁华里

碧桂园繁华里 86平 现代简约风格效果图

收藏
案例风格 现代简约 案例户型 二居 案例面积 86平米
楼盘名称 碧桂园繁华里 设计师 林凤设计师 案例类型 改善性住宅

设计理念:本案是现代风格,最大的亮点在于将原有厨房打开,做成开敞厨房及餐厅,将空间的视觉效果做得尽量的开敞。本案主体颜色选用白色与灰色,仅卫生间干区用玫红色防水乳胶漆作为跳色,跳跃性的视觉感受。

客厅
第1张
第2张
第3张
餐厅
第1张
卧室
第1张
第2张
第3张
卫生间
第1张
厨房
第1张
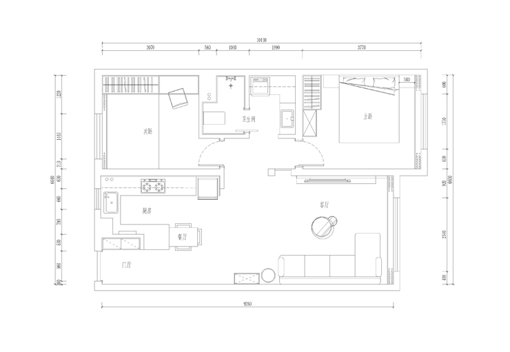
户型图
第1张
  • 案例详情

碧桂园繁华里-86平-现代风格-首图.jpg 碧桂园繁华里-86平-现代风格-客厅 (2).jpg 碧桂园繁华里-86平-现代风格-客厅.jpg

碧桂园繁华里86平2居室现代风格林凤装饰的客厅电视背景墙比较长,使得从主卧出来之后的过道光线很弱,显得有些憋闷,所以将那部分墙体设计成一块黑玻璃,不减少背景墙长度的同时,增加透光性和材质的多样性。电视背景墙运用了立体构成的设计手法,打造一个造型简洁又个性化的背景墙方案。

碧桂园繁华里-86平-现代风格-客餐厅.jpg

碧桂园繁华里86平2居室现代风格林凤装饰的餐厅由于女业主一人居住,所以不需要太大的餐桌,我将餐桌设置在橱柜延伸出来的岛台上,减少了空间的浪费,增加了空间的趣味性。

碧桂园繁华里-86平-现代风格-卧室(1).jpg 碧桂园繁华里-86平-现代风格-卧室(2).jpg 碧桂园繁华里-86平-现代风格-卧室.jpg

碧桂园繁华里86平2居室现代风格林凤装饰的卧室用硬包装饰床头背景墙,增加舒适和温馨的感觉,整个房间没有设置大衣柜,减少压抑感,使视觉更宽敞舒适。

碧桂园繁华里-86平-现代风格-卫生间.jpg

卫生间保留了原有的干湿分离的格局。干区没有将瓷砖全部贴到顶,取而代之的是彰显女性气息的玫红色防水乳胶漆。转角台面容纳了滚筒洗衣机,使空线条干净利落。碧桂园繁华里86平2居室现代风格林凤装饰的

碧桂园繁华里-86平-现代风格-厨房.jpg

碧桂园繁华里86平2居室现代风格林凤装饰的开敞厨房的设计最大化的延伸了客厅的视觉感受,减少了小户型的局促感,冰箱与橱柜的结合使空间整洁统一。白色烤漆门板弥补了北面采光不足的缺点。

户型图.jpg

案例设计师

林凤设计师

设计师:林凤设计师

从业时间:8年

设计理念:一切随心,用心去感悟空间

预约设计师

算算你家装修多少钱

报名即享丰厚赠品,享半价装修

免费报价
咨询热线:400-656-9909
20190221103704574636.jpg

精品设计案例

20180612134930523248.jpg 服务号二维码.jpg