立即预约 立即预约
免费定制整装家居

免费定制整装家居

一站置家 全程无忧 一省到底
hide.png

当前位置: 首页 > 装修案例效果图 > 大东区北海街

大东区北海街 89平 北欧风格效果图

收藏
案例风格 北欧 案例户型 二居 案例面积 89平米
楼盘名称 大东区北海街 设计师 林凤装饰设计师 案例类型 婚房

设计理念:设计说明模拟户型客情形式,模拟客户要求填写各个区域、可以介绍一些材质怎么搭配的寓意

客厅
第1张
第2张
第3张
卧室
第1张
第2张
卫生间
第1张
厨房
第1张
第2张
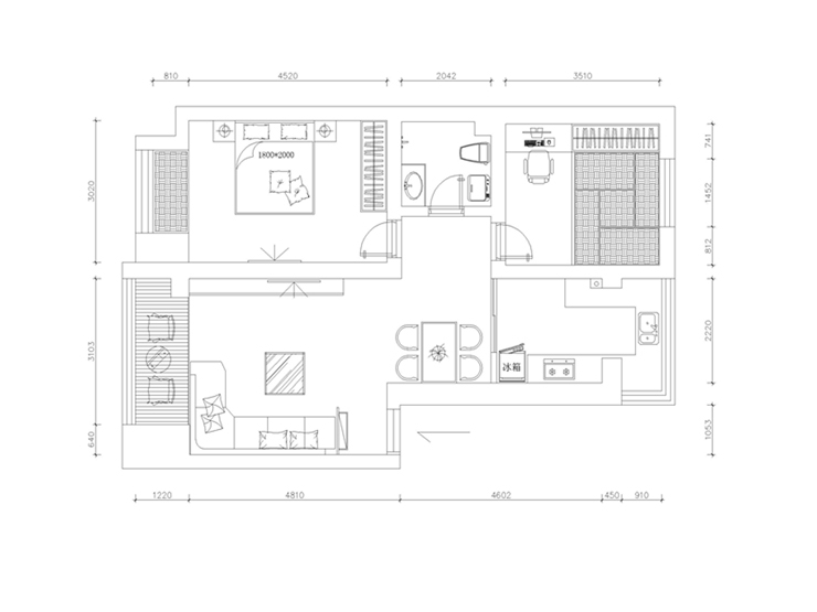
户型图
第1张
  • 案例详情

王宝良-大东区北海街89平米-日式风格-局部.jpg 王宝良-大东区北海街89平米-日式风格-客厅 (2).jpg 王宝良-大东区北海街89平米-日式风格-客厅.jpg

客厅遵循了日式一贯的清爽,木色地板和绿色植物地点缀,为客厅又增加了不少活力。

王宝良-大东区北海街89平米-日式风格-主卧.jpg 王宝良-大东区北海街89平米-日式风格-客卧.jpg 王宝良-大东区北海街89平米-日式风格-卫生间.jpg

卫生间墙地砖选择深系列的砖给人带来的是一种庄重,悬挂式的浴柜整体更具效果。

王宝良-大东区北海街89平米-日式风格-厨房1.jpg 王宝良-大东区北海街89平米-日式风格-厨房2.jpg

原木色柜门搭配白色整体符合日式风格效果,深浅色墙砖拼搭让整个格局不失情趣。

王宝良-大东区北海街89平米-日式风格-平面图.jpg

案例设计师

林凤装饰设计师

设计师:林凤装饰设计师

从业时间:5年

设计理念:生活是创意的来源,创意源于文化,创意源于自己。

预约设计师

算算你家装修多少钱

报名即享丰厚赠品,享半价装修

免费报价
咨询热线:400-656-9909
20190221103704574636.jpg

精品设计案例

20180612134930523248.jpg 服务号二维码.jpg