立即预约 立即预约
免费定制整装家居

免费定制整装家居

一站置家 全程无忧 一省到底
hide.png

当前位置: 首页 > 装修案例效果图 > 信达万科城

信达万科城 125平 现代简约风格效果图

收藏
案例风格 现代简约 案例户型 三居 案例面积 125平米
楼盘名称 信达万科城 设计师 林凤设计师 案例类型 改善性住宅

设计理念:本案是现代风格,最大的亮点在于将原有厨房和北阳台打开,厨房做成开敞中西厨及餐厅,北阳台设置成书房。本案主体颜色选用白色,与原木色搭配,打造开敞明亮的视觉感受。配合布艺家具和植物盆栽,还原一个市内外景色呼应,自然舒适的居室环境。

客厅
第1张
第2张
第3张
餐厅
第1张
卧室
第1张
卫生间
第1张
第2张
厨房
第1张
第2张
书房
第1张
门厅
第1张
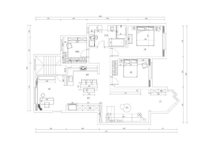
户型图
第1张
  • 案例详情

信达万科城-125平-现代风格-客厅(1).jpg 信达万科城-125平-现代风格-客厅.jpg 信达万科城-125平-现代风格-首图.jpg

信达万科城125平3居室现代风格林凤装饰的户型有一个入户花园,客厅没有明窗,所以我将入户花园与客厅之间的隔断拆除,做一个尽量大的垭口,尽量多的引入室外光源。两位业主不想在客厅放置电视,所以我用立体构成的手法为客户设计了一个纯白色的造型墙,并在下边暗藏了虚光灯带,增加了辅助光源,为夜晚营造温馨的氛围,同时又可以作为投影幕来使用。因为房子的举架偏低,顶棚没有做主灯,避免压抑,取而代之的是用明装筒灯做散点式的辅助光源。靠近厨房的墙面,利用西厨高柜的转折设置了书柜,提升美观度的同时,又增加了收纳功能。

信达万科城-125平-现代风格-餐厅.jpg

信达万科城125平3居室现代风格林凤装饰的餐桌位于中西厨之间,既是餐桌也是岛台,将厨房分割成环形动线。天然大理石罩面,功能性美观性兼顾,最大化的彰显空间的尺度,使视觉更开阔、大气。

信达万科城-125平-现代风格-卧室.jpg

信达万科城125平3居室现代风格林凤装饰的卧室用硬包装饰床头背景墙,增加舒适和温馨的感觉,整个房间没有设置衣柜,减少压抑感,使视觉更宽敞舒适。

信达万科城-125平-现代风格-卫生间 (2).jpg 信达万科城-125平-现代风格-卫生间.jpg

信达万科城125平3居室现代风格林凤装饰的卫生间是将原本两个小卫生间打通,合并而成的。浴室柜为特殊定制的转角柜体,打造出囊括洗衣机的超大台面。浴屏与浴缸相结合,墙面砌筑置物格,取代金属置物架,提升舒适度。洗衣机的预留与设置,更是在细微之处提升了生活的品质。

信达万科城-125平-现代风格-厨房.jpg 信达万科城-125平-现代风格-西厨.jpg

信达万科城125平3居室现代风格林凤装饰的中西厨的设计最大化的利用了墙面空间,西厨的高柜组合连接了客厅,使空间贯穿互通,调整了原本偏置的动线,拓展了客厅与厨房杂物的收纳空间,增加了小家电区,提升了生活品质。中厨没有设置吊柜,减少压抑感,瓷砖选择白色小砖,营造简洁文艺的氛围,与客厅白色墙面和谐统一。

信达万科城-125平-现代风格-书房.jpg

信达万科城125平3居室现代风格林凤装饰的书房

信达万科城-125平-现代风格-门厅.jpg

信达万科城125平3居室现代风格林凤装饰的玄关

户型图.jpg

案例设计师

林凤设计师

设计师:林凤设计师

从业时间:8年

设计理念:一切随心,用心去感悟空间

预约设计师

算算你家装修多少钱

报名即享丰厚赠品,享半价装修

免费报价
咨询热线:400-656-9909
20190221103704574636.jpg

精品设计案例

20180612134930523248.jpg 服务号二维码.jpg