立即预约 立即预约
免费定制整装家居

免费定制整装家居

一站置家 全程无忧 一省到底
hide.png

当前位置: 首页 > 装修案例效果图 > 大东久业佳园

大东久业佳园 90平 现代简约风格效果图

收藏
案例风格 现代简约 案例户型 二居 案例面积 90平米
楼盘名称 大东久业佳园 设计师 林凤装饰设计师 案例类型 改善性住宅

设计理念:此案设计位于大东 二手房拆改房子,房龄在15年,从设计的角度出发,结合室内室外空间采光,通风,以及结构,设计理念一切从简,去掉繁复的设计造型,利用直线条拉高整体视觉高度,全局出发,从生活与自然中感知设计。

客厅
第1张
第2张
第3张
餐厅
第1张
卧室
第1张
第2张
第3张
卫生间
第1张
厨房
第1张
门厅
第1张
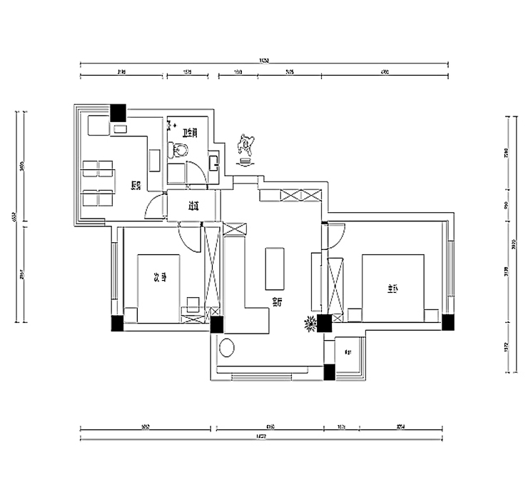
户型图
第1张
  • 案例详情

久业佳园-90㎡-现代风格-客厅1.jpg 久业佳园-90㎡-现代风格-客厅2.jpg 久业佳园-90㎡-现代风格-首图-客厅 (2).jpg

大东久业佳园90平2居室现代风格林凤装饰的客厅是15年前的房龄都是框架都是承重墙,所以能拆改的墙体全部拆除,把原来客厅多出的高粱全部用新砌墙的形式把梁隐藏起来,本身客厅比较宽,所以把北面的卧室加宽加长,空间更加匀称。用室内建筑的概念去把我空间的对位关系,游走的流转的动线,都经过精心计算,理性之美隐约可见。

久业佳园-90㎡-现代风格-餐厅.jpg

大东久业佳园90平2居室现代风格林凤装饰的餐桌也可以当吧台来使用,为生活增添不少情趣!也是全屋采光做好的一个空间!

久业佳园-90㎡-现代风格-次卧.jpg 久业佳园-90㎡-现代风格-主卧.jpg 久业佳园-90平-现代风格-北卧2.jpg

大东久业佳园90平2居室现代风格林凤装饰的主卧室是客户最关心的一个空间,但在结构上床的正上方有一道梁,业主住了十多年一直困惑这个问题,所以在这次设计上进行改进,利用石膏板做出一道弧形出来,把梁进行规避!在主背景墙上用淡淡的蓝色系点缀空间,绅士而沉稳的搭配小黑牛皮软床,空间安静而舒适

久业佳园-90㎡-现代风格-卫生间.jpg

大东久业佳园90平2居室现代风格林凤装饰的卫生间空间比较狭小,在满足洗漱用的东西外,尽量活动空间尽量多一些,保证了储物空间,整体定制的浴室柜!麻雀虽小,五脏俱全。

久业佳园-90㎡-现代风格-厨房1.jpg

大东久业佳园90平2居室现代风格林凤装饰的餐厅区域由于没有独立空间,所以本案餐厅空间与厨房空间共同营造,厨房与餐厅功能性十足,做饭餐可以就近餐桌区域就餐,方便快捷,生活更加方便!

久业佳园-90㎡-现代风格-玄关.jpg

大东久业佳园90平2居室现代风格林凤装饰的玄关

久业佳园-90㎡-现代风格-平面图.jpg

案例设计师

林凤装饰设计师

设计师:林凤装饰设计师

从业时间:11年

设计理念:以不退潮流的美学演绎空间,在和谐里激发出知性优雅的奢华主义

预约设计师

算算你家装修多少钱

报名即享丰厚赠品,品质装修

免费报价
咨询热线:400-656-9909
20190221103704574636.jpg

精品设计案例

20180612134930523248.jpg 服务号二维码.jpg