立即预约 立即预约
免费定制整装家居

免费定制整装家居

一站置家 全程无忧 一省到底
hide.png

当前位置: 首页 > 装修案例效果图 > 中海城尚城

中海城尚城 108平 北欧风格效果图

收藏
案例风格 北欧 案例户型 三居 案例面积 108平米
楼盘名称 中海城尚城 设计师 吴勇 案例类型 改善性住宅

设计理念:本案是北欧风格,经过前期和客户的沟通了解的客户的需求,对整体的把握更加有信心,环保现行,效果紧随其后。在合理的利用空的同时规划出完全休闲的位置,那就是阳台,与大自然相接触的位置。

客厅
第1张
第2张
餐厅
第1张
卧室
第1张
第2张
卫生间
第1张
第2张
厨房
第1张
门厅
第1张
过廊
第1张
第2张
户型图
第1张
  • 案例详情

中海城尚城-108-北欧-客厅1.jpg 中海城尚城-108-北欧-客厅.jpg

中海城尚城108平3居室北欧风格林凤装饰的客厅主要是空间宽敞,电视背景墙上方采用的一字型的造型棚,然后通过筒灯的光源将整体渲染到一定亮度与神秘。文化石的造型背景墙,即带着粗犷的感觉又有其细腻之处。

中海城尚城-108-北欧-餐厅.jpg

中海城尚城108平3居室北欧风格林凤装饰的餐厅位于整体空间和沙发一侧,标准的四人位,餐吊灯会给餐厅一个定位感,让就餐属于一个安稳的空间,而不是太过孤立,黑色的餐椅腿与灰色橘色皮革靠背以及原木色的餐桌形成一个完好的补色空间。

中海城尚城-108-北欧-主卧室.jpg 中海城尚城-108-北欧-主卧室1.jpg

主卧室说明:色彩的运用在装修手法上显得尤为重要,我们将灰蓝色作为床头背景的主体色,四周墙面配以白色,再通过原木色的床橘色的抱枕,将整体的空间氛围感,烘托到了极致。

中海城尚城-108-北欧-卫生间.jpg 中海城尚城-108-北欧-洗衣间.jpg

中海城尚城108平3居室北欧风格林凤装饰的卫生间沿用了浅色墙砖,花纹地砖的惯用渲染手法,既能将整个卫生间显得尤为干净精致,也能将风格的感觉继续沿用。那就是简约干练,细腻,柔和。

中海城尚城-108-北欧-厨房.jpg

中海城尚城108平3居室北欧风格林凤装饰的厨房采用的是贴近大自然的木本色作为柜门的颜色,与白色大理石纹理的墙砖相互衬托,互相凸显出北欧风格的本质,那就是与文理互动与自然互动。

中海城尚城-108-北欧-玄关.jpg

中海城尚城108平3居室北欧风格林凤装饰的玄关

中海城尚城-108-北欧-过廊.jpg 中海城尚城-108-北欧-过廊1.jpg

中海城尚城108平3居室北欧风格林凤装饰的走廊

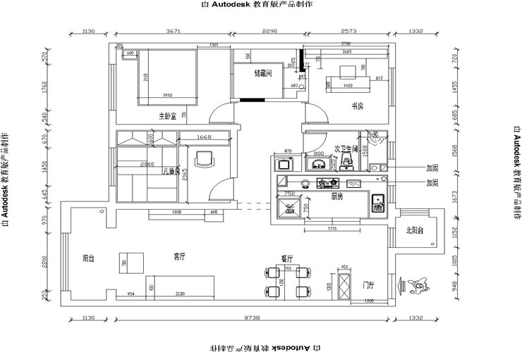
中海城尚城-108-北欧-户型图.jpg

案例设计师

吴勇

设计师:吴勇

从业时间:11年

设计理念:用抽象的思维去设计形象的事物

预约设计师

算算你家装修多少钱

报名即享丰厚赠品,品质装修

免费报价
咨询热线:400-656-9909
20190221103704574636.jpg

精品设计案例

20180612134930523248.jpg 服务号二维码.jpg