立即预约 立即预约
免费定制整装家居

免费定制整装家居

一站置家 全程无忧 一省到底
hide.png

当前位置: 首页 > 装修案例效果图 > 中冶上河湾

中冶上河湾 122平 新中式风格效果图

收藏
案例风格 新中式 案例户型 三居 案例面积 122平米
楼盘名称 中冶上河湾 设计师 邵丹 案例类型 改善性住宅

设计理念:新中式风格是将传统的元素赋予现代的设计中,既有现代设计的科技性,又体会到传统的中国韵味。.

客厅
第1张
第2张
第3张
餐厅
第1张
卧室
第1张
第2张
卫生间
第1张
厨房
第1张
过廊
第1张
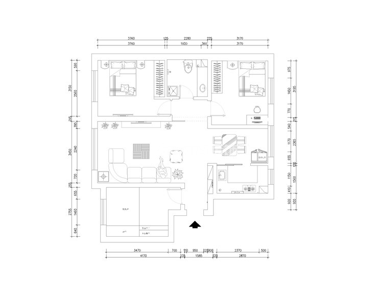
户型图
第1张
  • 案例详情

上河郡-122平-中式风格-客厅 (2).jpg 上河郡-122平-中式风格-客厅 (3).jpg 上河郡-122平-中式风格-客厅.jpg

中冶上河湾122平3居室中式风格林凤装饰的客厅相比起传统中式风格而言,新中式风格更为实用,再客厅棚顶采用了木质的成品雕花,镂空割断的墙体,融入了古朴,咖啡色地砖,也更添温馨与舒适.

上河郡-122平-中式风格-餐厅.jpg

中冶上河湾122平3居室中式风格林凤装饰的餐厅选用木质与布艺相结合,线条简洁硬朗,配合着精细的雕琢工艺。迎合了中式家具追求内敛、质朴的设计风格.

上河郡-122平-中式风格-卧室 (2).jpg 上河郡-122平-中式风格-卧室.jpg

中冶上河湾122平3居室中式风格林凤装饰的卧室的设计主要以简单舒适为主,墙面淡淡的颜色是大多数人都非常的喜欢这种新中式装修风格,它是永不过时的经典.

上河郡-122平-中式风格-卫生间.jpg

中冶上河湾122平3居室中式风格林凤装饰的卫生间选用暖色的墙地砖搭配,简洁而又不显庸俗,隐含着独有的温暖.

上河郡-122平-中式风格-厨房.jpg

中冶上河湾122平3居室中式风格林凤装饰的厨房使用实木橱柜,体现了主人翁的低调与内内涵,处处简洁而又不失庄重,使得中式风格体现的淋漓尽致。

上河郡-122平-中式风格-过廊.jpg

中冶上河湾122平3居室中式风格林凤装饰的过廊

上河郡-122平-中式风格-平面图.jpg

案例设计师

邵丹

设计师:邵丹

从业时间:8年

设计理念:细节决定品质。

预约设计师

算算你家装修多少钱

报名即享丰厚赠品,享半价装修

免费报价
咨询热线:400-656-9909
20190221103704574636.jpg

精品设计案例

20180612134930523248.jpg 服务号二维码.jpg