立即预约 立即预约
免费定制整装家居

免费定制整装家居

一站置家 全程无忧 一省到底
hide.png

当前位置: 首页 > 装修案例效果图 > 中铁丁香水岸

中铁丁香水岸 88平 北欧风格效果图

收藏
案例风格 北欧 案例户型 二居 案例面积 88平米
楼盘名称 中铁丁香水岸 设计师 林凤设计师 案例类型 改善性住宅

设计理念:本套案例的户型为标准的南北通透户型,设计理念轻装修,重装饰。注重家庭的收纳功能,营造舒适、温馨之感。

客厅
第1张
第2张
餐厅
第1张
第2张
卧室
第1张
第2张
卫生间
第1张
厨房
第1张
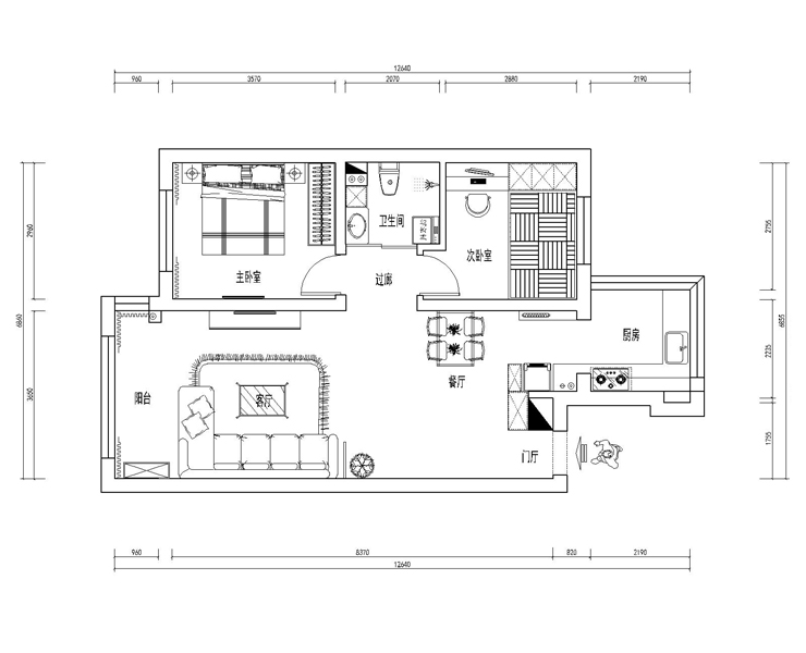
户型图
第1张
  • 案例详情

中铁丁香水岸-88平-现代 客厅01.jpg 中铁丁香水岸-88平-现代 客厅02.jpg

中铁丁香水岸88平2居室北欧风格林凤装饰的客厅温馨暖暖的居住氛围,淡淡的黄色乳胶漆墙面,原木色的家具,深灰色的沙发,软装、硬装,一切都是简简单单,没有刻意的修饰,但是搭配在一起又设计感十足,经久耐看。

中铁丁香水岸-88平-现代 餐厅01.jpg 中铁丁香水岸-88平-现代 餐厅02.jpg

中铁丁香水岸88平2居室北欧风格林凤装饰的厨房和餐厅的位置比较局促,在保证空间感的前提下,餐厅在设计的时候更多的是考虑家具、灯具、挂画款式的选择,最具北欧风代表的伊姆斯餐椅作为设计师的首选,体现业主追求高雅的品位。

中铁丁香水岸-88平-现代 榻榻米.jpg 中铁丁香水岸-88平-现代 主卧室.jpg

中铁丁香水岸88平2居室北欧风格林凤装饰的主卧室在设计的时候,主要考虑了灯光、床铺、衣柜等,虽然整体感觉简单,但是功能性必须样样齐全,简单、大方、舒适、实用。

中铁丁香水岸-88平-现代 卫生间.jpg

中铁丁香水岸88平2居室北欧风格林凤装饰的卫生间设计了干湿分离区,浴室柜选用了实用的镜柜,白色的理石台面和浅灰色的墙砖形成对比,显得干净、简洁,实木柜门更显档次。

中铁丁香水岸-88平-现代 厨房.jpg

中铁丁香水岸88平2居室北欧风格林凤装饰的厨房,业主是做餐厅生意,平时在家做饭的次数很少,所以设计为敞开式厨房。橱柜上下版的设计,深浅搭配,色彩上显得稳重但不显空间闷重。动线设计合理规划,洗切炒,电器的规划位置。整个设计营造出一个幸福感十足的氛围。

中铁丁香水岸-88平-现代-平面布置图.jpg

案例设计师

林凤设计师

设计师:林凤设计师

从业时间:5年

设计理念:设计不但要有整体性,更要突出实用性和舒适度,注重人体工程学。简单、实用、美观才是王道!

预约设计师

算算你家装修多少钱

报名即享丰厚赠品,享半价装修

免费报价
咨询热线:400-656-9909
20190221103704574636.jpg

精品设计案例

20180612134930523248.jpg 服务号二维码.jpg