立即预约
免费定制整装家居
一站置家 全程无忧 一省到底
设计理念:本方案追求的是效果与实用并存的设计理念,把效果做到最大化,做到颜色与颜色的协调与配合!
案例详情
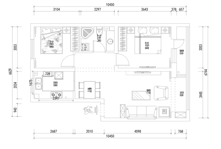
水晶城82平2居室现代风格林凤装饰的客厅吊顶采用石膏板直线边棚内嵌虚光灯槽,背景墙用石膏板做造型,造型里面的底色是用壁布做的,石膏板造型采用叠级的施工工艺,这样可以让背景墙更有层次感。
水晶城82平2居室现代风格林凤装饰的餐厅空间比较小,所以在设计上没做太多的墙面修饰,只是采用白色乳胶漆,为了不显得单调,在餐桌墙面上做的隔板造型,顶面是用石膏板做的餐厅造型,再加上餐厅的吊顶,把餐桌做了明确的定位。
水晶城82平2居室现代风格林凤装饰的主卧室
水晶城82平2居室现代风格林凤装饰的卫生间的墙砖跟最开始的设计有一定的出入,最开始的卫生间设计是以黑白灰为主题的,但是客户后来在手机选材的时候更倾向于暖色系,卫生间的这款墙砖是仿古系列。
水晶城82平2居室现代风格林凤装饰的厨房的墙砖采用300*300的仿古砖,客户对仿古砖比较喜欢,橱柜采用的是烤漆材质。
精品设计案例
设计说明:
三室两厅一厨两卫,高层整体采用美式风格,色调以深色为主,体现美式的居家感和温馨感。
设计说明:
本案业主为年轻时尚小两口,所以我们考虑到未来想要给未来宝宝一个温馨舒适的一个房间,所以本案整体采用现代风格的手法,运用颜色,来打造整体空间的设计感及时尚感
设计说明:
本案以北欧风格为主题的设计,北欧风格能以现代、简洁、自然的特点俘获人心,所营造出来的生活氛围会让人倍感舒适与自在。
设计说明:
客户是一名成功人士,对于家的执念就是简单干净,客户衣服比较多,所以把每个空间都做了大衣柜,并且融入到设计里