立即预约 立即预约
免费定制整装家居

免费定制整装家居

一站置家 全程无忧 一省到底
hide.png

当前位置: 首页 > 装修案例效果图 > 东油馨村

东油馨村 98平 日式风格效果图

收藏
案例风格 日式 案例户型 二居 案例面积 98平米
楼盘名称 东油馨村 设计师 林凤设计师 案例类型 改善性住宅

设计理念:日式极简的处理方式,吸纳了日式原木色系的淡雅温馨,融合在现代线条的极简和流畅,摒弃了日式繁琐的配饰和琐碎,为业主打造出了,淡而雅,静而悠的舒心怡人的居住空间。从城市的喧嚣繁锁中解脱出来,终于在闹市有了一片修养自己的栖息之地。。。

客厅
第1张
第2张
餐厅
第1张
第2张
卧室
第1张
第2张
卫生间
第1张
第2张
厨房
第1张
门厅
第1张
过廊
第1张
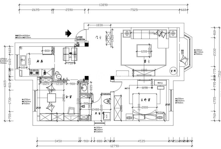
户型图
第1张
东油馨村-98平-现代风格-客厅背景.jpg 东油馨村-98平-现代风格-客厅首图.jpg

你从闹市归来,推开门,原木色的屏风和交相呼应的干支植物 犹如归于山林,洗去了一身的疲乏和嘈杂,无论生存所迫经历了什么,这一刻,放一放,让心灵归一自然,归一平和。淡灰色的背景墙,磨砂的乳胶漆质地,没有繁琐的装饰线条,单单是它中性宁而静的色彩,就足以让做在沙发上的你,放松下来,视线安慰下来,心情和缓下来。对比沙发背景及其他墙面的暖黄色系,颜色的对比成就了背景墙的独特和亮点。

东油馨村-98平-现代风格-餐厅.jpg 东油馨村-98平-现代风格-餐厅1.jpg

东油馨村98平2居室日式风格林凤装饰的餐厅

东油馨村-98平-现代风格-榻榻米室.jpg 东油馨村-98平-现代风格-主卧室.jpg

次卧:多功能榻榻米,配合书柜,色彩上日式元素的运用,削弱了地榻的 憨厚之感,打造了茶室,会客,休闲,习字,多功能室,体现了主人,热衷于自己,高雅精致的生活兴趣,残阳西下,习一手好字,沏一壶好茶,三五好友,怡然自得。。。、。。

东油馨村-98平-现代风格-卫生间.jpg 东油馨村-98平-现代风格-干湿分离区.jpg

东油馨村98平2居室日式风格林凤装饰的卫生间

东油馨村-98平-现代风格-厨房.jpg

东油馨村98平2居室日式风格林凤装饰的厨房

东油馨村-98平-现代风格-门厅.jpg

东油馨村98平2居室日式风格林凤装饰的玄关

东油馨村-98平-现代风格-过廊.jpg

东油馨村98平2居室日式风格林凤装饰的走廊

东油馨村-98平-现代风格-平面布置图.jpg

案例设计师

林凤设计师

设计师:林凤设计师

从业时间:0年

设计理念:

预约设计师

算算你家装修多少钱

报名即享丰厚赠品,品质装修

免费报价
咨询热线:400-656-9909
20190221103704574636.jpg

精品设计案例

20180612134930523248.jpg 服务号二维码.jpg