立即预约 立即预约
免费定制整装家居

免费定制整装家居

一站置家 全程无忧 一省到底
hide.png

当前位置: 首页 > 装修案例效果图 > 香山墅

香山墅 510平 新中式风格效果图

收藏
案例风格 新中式 案例户型 五居 案例面积 510平米
楼盘名称 香山墅 设计师 林凤装饰设计师 案例类型 改善性住宅

设计理念:传统与现代居室风格相结合的方式,不拘泥于单一的设计风格,色彩成熟稳重,质朴又不失典雅,韵味浓烈悠长,充分体现了中国传统之美。

客厅
第1张
餐厅
第1张
卧室
第1张
第2张
卫生间
第1张
厨房
第1张
休闲区
第1张
门厅
第1张
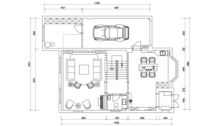
户型图
第1张
  • 案例详情

香山墅-510平-新中式风格-客厅.jpg

香山墅510平别墅五居室新中式风格林凤装饰的客厅以传统与现代居室风格相结合的方式,不拘泥于单一的设计风格,色彩成熟稳重,质朴又不失典雅,韵味浓烈悠长,充分体现了中国传统之美。

香山墅-510平-新中式风格-餐厅.jpg

香山墅510平别墅五居室新中式风格林凤装饰的餐厅空间使用圆形餐桌,增强就餐氛围,整体风格以简洁舒适为主。

香山墅-510平-新中式风格-卧室1.jpg 香山墅-510平-新中式风格-卧室2.jpg

香山墅510平别墅五居室新中式风格林凤装饰的卧室床头背景墙采用局部布纹硬包 既包含了硬朗的线条又不失其舒适性 色彩以简约温馨的暖色调为主。

香山墅-510平-新中式风格-卫生间.jpg

香山墅510平别墅五居室新中式风格林凤装饰的卫生间

香山墅-510平-新中式风格-厨房.jpg

香山墅510平别墅五居室新中式风格林凤装饰的开放式厨房,以灰色的墙砖与木色橱柜的搭配彰显中国美学文化,岛台延伸了厨房的功能,增强了便捷性。

香山墅-510平-新中式风格-茶室.jpg

香山墅510平别墅五居室新中式风格林凤装饰的茶室

香山墅-510平-新中式风格-门厅.jpg

香山墅510平别墅五居室新中式风格林凤装饰的玄关

香山墅-510平-新中式风格-户型图.jpg

案例设计师

林凤装饰设计师

设计师:林凤装饰设计师

从业时间:10年

设计理念:搭建人与空间对话、物质与精神完美完美结合,设计源于生活,源于内心。

预约设计师

算算你家装修多少钱

报名即享丰厚赠品,享半价装修

免费报价
咨询热线:400-656-9909
20190221103704574636.jpg

精品设计案例

20180612134930523248.jpg 服务号二维码.jpg