立即预约 立即预约
免费定制整装家居

免费定制整装家居

一站置家 全程无忧 一省到底
hide.png

当前位置: 首页 > 装修案例效果图 > 九洲御府

九洲御府 98平 美式风格效果图

收藏
案例风格 美式 案例户型 二居 案例面积 98平米
楼盘名称 九洲御府 设计师 林凤装饰全案设计师 案例类型 改善性住宅

设计理念:在色彩上,整体暖黄色与电视背景墙的壁纸鲜明对比,提升视觉效果。材质上地砖与实木地板的搭配提高了整体档次。

客厅
第1张
第2张
第3张
第4张
餐厅
第1张
第2张
卧室
第1张
第2张
卫生间
第1张
过廊
第1张
户型图
第1张
  • 案例详情

九洲御府-98平-美式风格-客厅.jpg 九洲御府-98平-美式风格-客厅1.jpg 九洲御府-98平-美式风格-客厅2.jpg 九洲御府-98平-美式风格-首图.jpg

九洲御府98平2居室简美风格林凤装饰的客厅以棚线为主简洁大方,只保留了电视背景墙的筒灯。背景墙以整体石膏线为主,增加了空间的层次感。

九洲御府-98平-美式风格-餐厅.jpg 九洲御府-98平-美式风格-餐厅1.jpg

九洲御府98平2居室简美风格林凤装饰的餐厅是4人餐桌,餐吊灯增添了活力,餐厅地面满铺地砖。

九洲御府-98平-美式风格-北卧.jpg 九洲御府-98平-美式风格-主卧.jpg

【主卧室说明】主卧室宽敞明亮舒适,床头背景墙上做了其他暖色系的乳胶漆和造型,营造卧室温馨的氛围。卧室的家具依旧是现代为主,实木的地板和地毯为整体空间增添了质感。

九洲御府-98平-美式风格-卫生间.jpg

九洲御府98平2居室简美风格林凤装饰的卫生间整体采用了暖色系的瓷砖进行粘贴,并且采用大尺寸瓷砖,整体显得整洁大方。浴柜洗手盆皆为定制,定制的台板将洗衣机包在里侧,布局合理,同时更节省时间。

九洲御府-98平-美式风格-过廊.jpg

九洲御府98平2居室简美风格林凤装饰的过廊

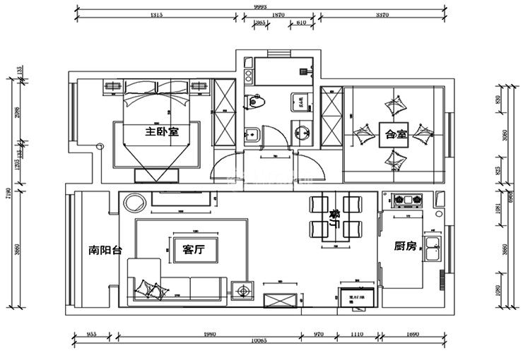
九洲御府-98平-美式风格-平面图.jpg

案例设计师

林凤装饰全案设计师

设计师:林凤装饰全案设计师

从业时间:10年

设计理念:设计源于生活

预约设计师

算算你家装修多少钱

报名即享丰厚赠品,品质装修

免费报价
咨询热线:400-656-9909
20190221103704574636.jpg

精品设计案例

20180612134930523248.jpg 服务号二维码.jpg