立即预约 立即预约
免费定制整装家居

免费定制整装家居

一站置家 全程无忧 一省到底
hide.png

当前位置: 首页 > 装修案例效果图 > 伴山湖

伴山湖 300平 美式风格效果图

收藏
案例风格 美式 案例户型 三居 案例面积 300平米
楼盘名称 伴山湖 设计师 林凤装饰设计 案例类型 改善性住宅

设计理念:在简美风格设计特点追求的是极尽的自然,充满个性化,而且还比较自由现代,多采用纯色来进行整个房间的装修风格。

客厅
第1张
第2张
餐厅
第1张
第2张
第3张
卧室
第1张
卫生间
第1张
休闲区
第1张
第2张
第3张
过廊
第1张
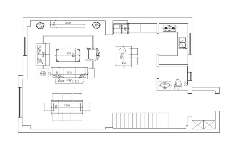
户型图
第1张
  • 案例详情

伴山湖-300平-简美风格-客厅.jpg 伴山湖-300平-简美风格-客厅3.jpg

伴山湖300平3居室简美风格林凤装饰的客厅我们以白色为主,直线吊棚石膏线圈出了层次感,整体造型比较有立体感,电视背景使用护墙板装饰,体现材质的肌理带来的效果,家具以米色为主,绿色为辅,增加空间层次性。

伴山湖-300平-简美风格-餐厅.jpg 伴山湖-300平-简美风格-餐厅2.jpg 伴山湖-300平-简美风格-餐厅3.jpg

伴山湖300平3居室简美风格林凤装饰的餐厅整个房屋的核心,挑空是整个房屋的亮点,通透宽敞。它还有一个功能就是与二层爱的言语传递。古铜色的壁灯,怀揣着怀旧之感,餐椅的绿色与整个空间互通关联。

伴山湖-300平-简美风格-卧室.jpg

伴山湖300平3居室简美风格林凤装饰的卧室由于棚面比较高,吊顶采用了穹顶,略显高贵。实木床的胡蓝皮革,典雅大方。

伴山湖-300平-简美风格-卫生间.jpg

伴山湖300平3居室简美风格林凤装饰的卫生间根据女主人的喜爱放置了浴缸,卫生间空间很大,1.6米的大手盆。1米的淋浴区,都是整个卫生间的亮点。

伴山湖-300平-简美风格-台球室.jpg 伴山湖-300平-简美风格-影音室.jpg 伴山湖-300平-简美风格-影音室2.jpg

伴山湖300平3居室简美风格林凤装饰的影音室昏暗的空间,明亮的屏幕,放映着洋溢的电影,喝上一杯小酒,一天的劳累在这得到了放松。

伴山湖-300平-简美风格-廊厅.jpg

伴山湖300平3居室简美风格林凤装饰的走廊

伴山湖2019.7.12-Model.jpg

案例设计师

林凤装饰设计

设计师:林凤装饰设计

从业时间:9年

设计理念:追求艺术带给生活最美的体验

预约设计师

算算你家装修多少钱

报名即享丰厚赠品,品质装修

免费报价
咨询热线:400-656-9909
20190221103704574636.jpg

精品设计案例

20180612134930523248.jpg 服务号二维码.jpg