立即预约 立即预约
免费定制整装家居

免费定制整装家居

一站置家 全程无忧 一省到底
hide.png

当前位置: 首页 > 装修案例效果图 > 金辉优步湖畔

金辉优步湖畔 103平 轻奢风格效果图

收藏
案例风格 轻奢 案例户型 三居 案例面积 103平米
楼盘名称 金辉优步湖畔 设计师 林凤装饰设计师 案例类型 改善性住宅

设计理念:本案装修风格定位为现代轻奢风,以低调奢华简洁为整洁为核心的表现方式诠释主人的个性与品位。

客厅
第1张
第2张
第3张
餐厅
第1张
第2张
卧室
第1张
卫生间
第1张
厨房
第1张
书房
第1张
儿童房
第1张
衣帽间
第1张
门厅
第1张
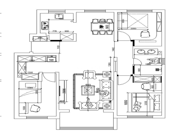
户型图
第1张
  • 案例详情

金辉优步湖畔-103平-现代轻奢-首图.jpg 金辉优步湖畔-103平-现代轻奢-客厅 (1).jpg 金辉优步湖畔-103平-现代轻奢-客厅 (2).jpg

金辉优步湖畔103平3居室现代轻奢风格林凤装饰的客厅部分从色彩与餐厅门厅进行互动,客厅空间多元化,与其连接处较多,因此不能只考虑单处,应于整体其他空进进行互动,电视处采用理石上墙搭配木作护墙板呈现奢华感,沙发背景硬包金属条呈现线条感,体现整体效果,从而实现奢华而不张扬。

金辉优步湖畔-103平-现代轻奢-餐厅 (1).jpg 金辉优步湖畔-103平-现代轻奢-餐厅 (2).jpg

金辉优步湖畔103平3居室现代轻奢风格林凤装饰的餐厅与厨房又是连同空间,开放后通过颜色与佩饰进行互动达到整体效果。

金辉优步湖畔-103平-现代轻奢-主卧室.jpg

金辉优步湖畔103平3居室现代轻奢风格林凤装饰的卧室部分空间较小,亮点为大衣柜吗,因径深与开间较小再放上大衣柜会显得没有距离感,因此采用玻璃门大衣柜搭配感应灯光,从而实现了距离感与低调美感。

金辉优步湖畔-103平-现代轻奢-卫生间.jpg

金辉优步湖畔103平3居室现代轻奢风格林凤装饰的卫生间其实重点放在了颜色上,利用重色调,拉伸深沉感,白色洁具做浮色体现简洁明快。

金辉优步湖畔-103平-现代轻奢-厨房.jpg

金辉优步湖畔103平3居室现代轻奢风格林凤装饰的厨房与餐厅开放式处理,也是由于空间较小装门会产生压抑感,所以开放处理

金辉优步湖畔-103平-现代轻奢-书房.jpg

金辉优步湖畔103平3居室现代轻奢风格林凤装饰的书房

金辉优步湖畔-103平-现代轻奢-儿童房.jpg

金辉优步湖畔103平3居室现代轻奢风格林凤装饰的儿童房

金辉优步湖畔-103平-现代轻奢-衣帽间.jpg

金辉优步湖畔103平3居室现代轻奢风格林凤装饰的衣帽间

金辉优步湖畔-103平-现代轻奢-门厅.jpg

金辉优步湖畔103平3居室现代轻奢风格林凤装饰的玄关

金辉优步湖畔-103平-现代轻奢-平面布局.png

案例设计师

林凤装饰设计师

设计师:林凤装饰设计师

从业时间:14年

设计理念:设计为本

预约设计师

算算你家装修多少钱

报名即享丰厚赠品,享半价装修

免费报价
咨询热线:400-656-9909
20190221103704574636.jpg

精品设计案例

20180612134930523248.jpg 服务号二维码.jpg