立即预约 立即预约
免费定制整装家居

免费定制整装家居

一站置家 全程无忧 一省到底
hide.png

当前位置: 首页 > 装修案例效果图 > 郡原小石城

郡原小石城 144平 轻奢风格效果图

收藏
案例风格 轻奢 案例户型 三居 案例面积 144平米
楼盘名称 郡原小石城 设计师 慈英雪 案例类型 改善性住宅

设计理念:本设计方案以现代风格为主,以高级灰作为全屋主色调,提升了整个空间的时尚感觉,打造了一个时尚奢华的空间氛围。

  • 案例详情

郡原小石城-144平-现代轻奢风格-客厅 (3).jpg 郡原小石城-144平-现代轻奢风格-客厅 (2).jpg 郡原小石城-144平-现代轻奢风格-客厅 (4).jpg 郡原小石城-144平-现代轻奢风格-客厅.jpg

郡原小石城144平3居室现代轻奢风格林凤装饰的室内主色调以黑白灰为主,局部采用黑的烤漆玻璃线条来搭配,驼色的皮质沙发给人一种稳重感,白色理石纹理的地面,银色的墙面,还有吊顶的棚面,空间一下子就活泼起来,电视背景墙采用瓷砖上去及硬包和镜片整体搭配,背景墙大气稳重。

郡原小石城-144平-现代轻奢风格-餐厅 (2).jpg 郡原小石城-144平-现代轻奢风格-餐厅 (3).jpg 郡原小石城-144平-现代轻奢风格-餐厅 (4).jpg 郡原小石城-144平-现代轻奢风格-餐厅.jpg

郡原小石城144平3居室现代轻奢风格林凤装饰的餐厅

郡原小石城-144平-现代轻奢风格-卧室.jpg

郡原小石城144平3居室现代轻奢风格林凤装饰的主是休息的地方,不用特别明亮,以深色调为主,浅色调为辅,让空间舒服而优雅。阳光散透过纱帘,变得细碎而温婉,营造出怡情养心的居住环境。

郡原小石城-144平-现代轻奢风格-卫生间.jpg 郡原小石城-144平-现代轻奢风格-卫生间.jpg

郡原小石城144平3居室现代轻奢风格林凤装饰的卫生间是家里最重要的一个空间。长条形卫生间在使用上要比方形卫生间使用舒适,采用深色调的墙砖,使各个空间的风格统一,棚顶采用白色吊顶,视觉感更强打造不一样的卫浴空间。

郡原小石城-144平-现代轻奢风格-厨房 (2).jpg 郡原小石城-144平-现代轻奢风格-厨房.jpg

郡原小石城144平3居室现代轻奢风格林凤装饰的厨房,在这个世界上,最美好的地方就是厨房。敞开式厨房在一定程度上更是一个连接家庭成员,款待亲朋好友,和客厅一起成为一个互动的地方。

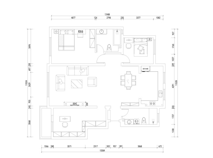
郡原小石城-144平-现代轻奢风格-卧室-平面布置图.jpg

案例设计师

慈英雪

设计师:慈英雪

从业时间:8年

设计理念:做有情感的设计,做符合生活方式的设计,无限优化生活空间

预约设计师

算算你家装修多少钱

报名即享丰厚赠品,享半价装修

免费报价
咨询热线:400-656-9909
20190221103704574636.jpg

精品设计案例

20180612134930523248.jpg 服务号二维码.jpg