立即预约 立即预约
免费定制整装家居

免费定制整装家居

一站置家 全程无忧 一省到底
hide.png

当前位置: 首页 > 装修案例效果图 > 翰林世家

翰林世家 79平 北欧风格效果图

收藏
案例风格 北欧 案例户型 二居 案例面积 79平米
楼盘名称 翰林世家 设计师 林凤装饰全案设计师 案例类型 改善性住宅

设计理念:本方案以北欧风格为主题,室内设计的顶、墙、地三个面,完全不用复杂造型装饰,只用软装饰品、色块来点缀。本案在基础装修上多以直线与灰色搭配,在家具方面多以原木色暖色系搭配。

客厅
第1张
第2张
第3张
第4张
第5张
第6张
餐厅
第1张
卧室
第1张
卫生间
第1张
厨房
第1张
门厅
第1张
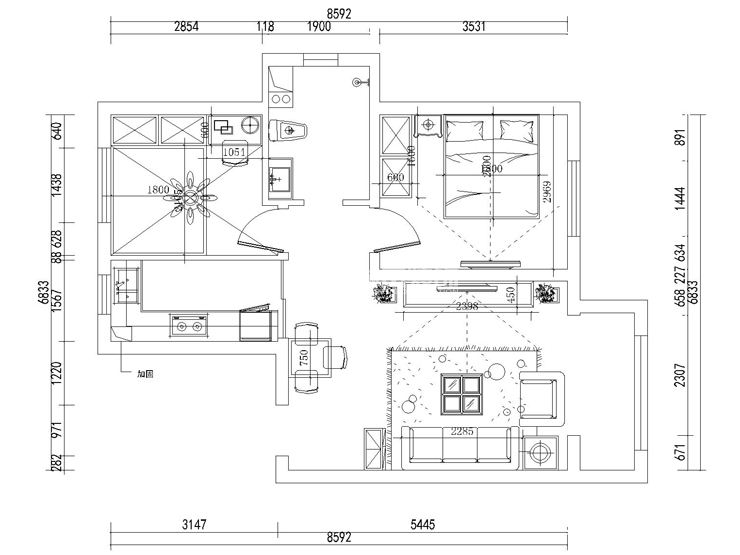
户型图
第1张
  • 案例详情

翰林世家-79平-北欧风格-客厅1.jpg 翰林世家-79平-北欧风格-客厅2.jpg 翰林世家-79平-北欧风格-客厅3.jpg 翰林世家-79平-北欧风格-客厅4.jpg 翰林世家-79平-北欧风格-客厅5.jpg 翰林世家-79平-北欧风格-首图.jpg

翰林世家79平2居室北欧风格林凤装饰的客厅简单的造型以及灰色的乳胶漆都会给人一种和谐的美,布艺沙发配原木艺茶几让人在家具上感受温暖柔软的质感。

翰林世家-79平-北欧风格-餐厅.jpg

翰林世家79平2居室北欧风格林凤装饰的餐厅在物理空间上是属于封闭式的,餐桌采用木头材质,和客厅相互呼应。

翰林世家-79平-北欧风格-榻榻米.jpg

翰林世家79平2居室北欧风格林凤装饰的木色榻榻米的组合,显得更为温馨,在暖白色灯光的映衬下爱意满满。

翰林世家-79平-北欧风格-卫生间.jpg

翰林世家79平2居室北欧风格林凤装饰的卫生间采用灰色纹理瓷砖为主色调,淋浴区采用玻璃房,洗面台则是采用白色烤漆柜体与整体空间完美搭配。

翰林世家-79平-北欧风格-厨房.jpg

翰林世家79平2居室北欧风格林凤装饰的厨房是采用苹果木色柜门板与白色的理石做搭配,木色的柔和与厨房电器的冰冷质感产生了相互间的和谐。使生活在里面的人们温馨和睦。

翰林世家-79平-北欧风格-门厅.jpg

翰林世家79平2居室北欧风格林凤装饰的玄关

翰林世家-79平-北欧风格-平面图.jpg

案例设计师

林凤装饰全案设计师

设计师:林凤装饰全案设计师

从业时间:8年

设计理念:在设计中体会生活的真谛。在生活中提炼设计的精髓。

预约设计师

算算你家装修多少钱

报名即享丰厚赠品,享半价装修

免费报价
咨询热线:400-656-9909
20190221103704574636.jpg

精品设计案例

20180612134930523248.jpg 服务号二维码.jpg