立即预约 立即预约
免费定制整装家居

免费定制整装家居

一站置家 全程无忧 一省到底
hide.png

当前位置: 首页 > 装修案例效果图 > 保利海棠

保利海棠 155平 新中式风格效果图

收藏
案例风格 新中式 案例户型 二居 案例面积 155平米
楼盘名称 保利海棠 设计师 林凤设计师 案例类型 改善性住宅

设计理念:本案是现代中式风格为主的设计案例。现代中式风格它是运用现代手法搭配中式古典元素,化繁琐的雕梁画栋为简化的线条勾勒出的完美形体。它凝练了时间,经历了岁月,感受了腹有诗书气自华。

客厅
第1张
第2张
卧室
第1张
卫生间
第1张
厨房
第1张
门厅
第1张
第2张
过廊
第1张
第2张
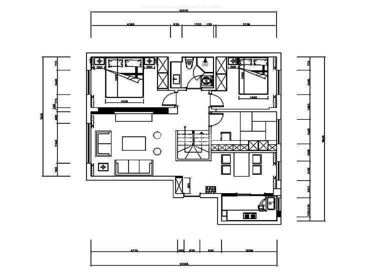
户型图
第1张
  • 案例详情

保利海棠--155平--现代中式风格--客厅.jpg 保利海棠--155平--现代中式风格--首图.jpg

保利海棠155平阁楼现代中式风格林凤装饰的客厅是阁楼形式,客厅斜顶挑空,电视背景墙是有护墙板和理石构成,整体墙面构成比例分配均匀,棚顶木线装饰

保利海棠--155平--现代中式风格--主卧室.jpg

保利海棠155平阁楼现代中式风格林凤装饰的卧室是储藏式设计,定制衣柜完美的解决了成品衣柜储物空间分割不合理的情况,窗帘的选择也是令人耳目一新的,这样解决了空间不对称的问题。

保利海棠--155平--现代中式风格--卫生间.jpg

保利海棠155平阁楼现代中式风格林凤装饰的卫生间的设计比较注重实用性,由于房子的二次翻新,因此业主对储物功能要求比较高。设计师应业主要求,在设计手盆的时候采用了订制类手盆,这样不仅仅柜子储物空间大。而且在镜子的设计上也采用镜柜款式,这样既反射出空间大,又增加了放化妆品的空间。

保利海棠--155平--现代中式风格--厨房.jpg

保利海棠155平阁楼现代中式风格林凤装饰的厨房与餐厅融合一体,橱柜橱柜的延伸使柴米油盐酱醋茶得到非常宽裕的空间。这样的组合让每个空间都增大储物空间。

保利海棠--155平--现代中式风格--鞋柜.jpg 保利海棠--155平--现代中式风格--玄关.jpg

保利海棠155平阁楼现代中式风格林凤装饰的玄关鞋柜

保利海棠--155平--现代中式风格--过廊.jpg 保利海棠--155平--现代中式风格--楼梯扶手.jpg

保利海棠155平阁楼现代中式风格林凤装饰的走廊楼梯设计

保利海棠--155平--现代中式风格--平面图.jpg

案例设计师

林凤设计师

设计师:林凤设计师

从业时间:10年

设计理念:

预约设计师

算算你家装修多少钱

报名即享丰厚赠品,享半价装修

免费报价
咨询热线:400-656-9909
20190221103704574636.jpg

精品设计案例

20180612134930523248.jpg 服务号二维码.jpg