立即预约 立即预约
免费定制整装家居

免费定制整装家居

一站置家 全程无忧 一省到底
hide.png

当前位置: 首页 > 装修案例效果图 > 融创沈阳府

融创沈阳府 145平 现代简约风格效果图

收藏
案例风格 现代简约 案例户型 四居 案例面积 145平米
楼盘名称 融创沈阳府 设计师 林凤设计师 案例类型 改善性住宅

设计理念:本案风格主要以简约奢华为主,随着现代年轻人的时尚追求,对于家具和格局空间的要求更加简洁化。去掉繁琐,复杂的造型。简约而不简单。

客厅
第1张
第2张
第3张
第4张
餐厅
第1张
卧室
第1张
第2张
卫生间
第1张
厨房
第1张
户型图
第1张
  • 案例详情

融创沈阳府-145平-现代风格 客厅1.jpg 融创沈阳府-145平-现代风格 客厅3.jpg 融创沈阳府-145平-现代风格 客厅2.jpg 融创沈阳府-145平-现代风格 首图.jpg

融创沈阳府145平4居室现代风格林凤装饰的客厅电视背景墙做的是半隐形门的设计,硬包和护墙板的结合,加一些金属条的收边,整个客厅和餐厅的吊顶分区设计,过道以石膏板平棚找平,这样空间会更加整体大气,沙发背景墙没有做过多的造型,仅仅放了一组装饰画,可以跟空间造型整体做个色彩的呼应,不会特别的突兀。

融创沈阳府-145平-现代风格 餐厅.jpg

融创沈阳府145平4居室现代风格林凤装饰的餐厅的空间非常的完整,餐桌的侧面还做了一组嵌入式酒柜的设计。酒柜的设计格局上半部分是镂空的隔断加了一些虚光灯带做辅助光源,下半部分是整体带柜门的收纳空间。餐厅的吊灯非常的有个性,符合客户的要求。

融创沈阳府-145平-现代风格 次卧.jpg 融创沈阳府-145平-现代风格 主卧.jpg

融创沈阳府145平4居室现代风格林凤装饰的主卧室的空间对灯光的要求需要暖一些多一些辅助光源,不需要主灯,主卧靠窗的位置想做一个飘窗,主卧室有一个衣帽间是敞开式的,配胡桃木颜色的柜体。比较厚重高档一些。

融创沈阳府-145平-现代风格 客卫.jpg

融创沈阳府145平4居室现代风格林凤装饰的卫生间的空间设计相对比较使用一些,客户对砖的选择需求是要干净明亮,浴室柜台面太尽可能大,卫生间需要浴房,洗衣机上面空间可以放一些置物架。

融创沈阳府-145平-现代风格 厨房.jpg

融创沈阳府145平4居室现代风格林凤装饰的厨房的橱柜空间是U型的,一部分被冰箱占据了,所以空间不是特别大,客户喜欢整体颜色都一致,所以选择跟其他家居空间相似的胡桃木材质。看起来更搭配一些。

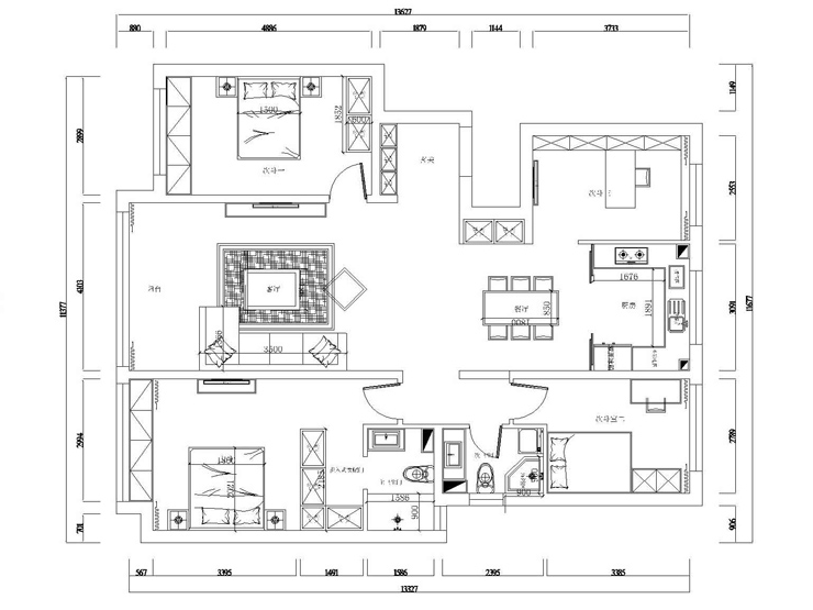
融创沈阳府-145平-现代风格 平面图.jpg

案例设计师

林凤设计师

设计师:林凤设计师

从业时间:6年

设计理念:一切随心,用心去感悟空间

预约设计师

算算你家装修多少钱

报名即享丰厚赠品,享半价装修

免费报价
咨询热线:400-656-9909
20190221103704574636.jpg

精品设计案例

20180612134930523248.jpg 服务号二维码.jpg