立即预约 立即预约
免费定制整装家居

免费定制整装家居

一站置家 全程无忧 一省到底
hide.png

当前位置: 首页 > 装修案例效果图 > 紫提东郡

紫提东郡 78平 现代简约风格效果图

收藏
案例风格 现代简约 案例户型 二居 案例面积 78平米
楼盘名称 紫提东郡 设计师 林凤设计师 案例类型 改善性住宅

设计理念:本案总体风格以现代简约为主,简约大气但不显得枯燥单调,以淡灰色为主总体风格低调且高贵。

客厅
第1张
第2张
第3张
第4张
餐厅
第1张
卧室
第1张
第2张
卫生间
第1张
厨房
第1张
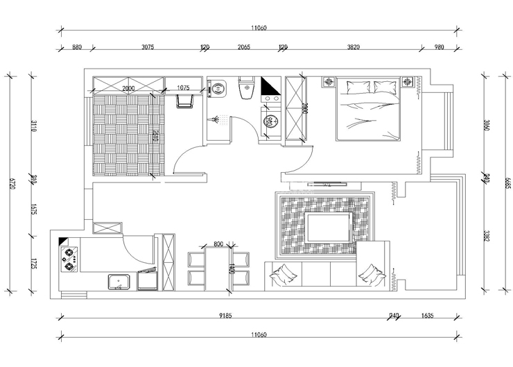
户型图
第1张
  • 案例详情

紫提东郡-78平-沙发背景墙.jpg 紫提东郡-78平-电视背景墙.jpg 紫提东郡-78平-客厅.jpg 紫提东郡-78平-首图.jpg

紫提东郡78平2居室现代风格林凤装饰的客厅空间墙面以素色为主,搭配一些石膏线造型来点缀,简约却不简单,整体空间宽敞明亮,更适合平时工作压力大的当代年轻人,作为一个回家之后能够完全放松的休息空间。

紫提东郡-78平-餐厅.jpg

紫提东郡78平2居室现代风格林凤装饰的餐厅与厨房之间距离非常近空间不是特别大,透明的推拉门使得总体空间更宽敞一些,不会因为空间小而有紧迫感。

紫提东郡-78平-次卧.jpg 紫提东郡-78平-主卧.jpg

【主卧室说明】主卧的空间相对来说空间比较大一些,墙面以淡黄色为主,床头背景墙也搭配了石膏线的造型使得空间不显得空旷。【次卧室说明】次卧的空间采用的是定制榻榻米加上连体的书桌装饰隔板,满足储物空间的同时也可以在来客人时作为卧室使用。

格林观塘-168平-美式风格-卫生间.jpg 紫提东郡-78平-厨房.jpg

紫提东郡78平2居室现代风格林凤装饰的厨房总体空间宽敞明亮搭配现代风格浅色橱柜使得总体划一。

紫提东郡-78平-现代风格-平面图.jpg

案例设计师

林凤设计师

设计师:林凤设计师

从业时间:5年

设计理念:热爱设计热爱生活让作品更加有温度

预约设计师

算算你家装修多少钱

报名即享丰厚赠品,品质装修

免费报价
咨询热线:400-656-9909
20190221103704574636.jpg

精品设计案例

20180612134930523248.jpg 服务号二维码.jpg