立即预约 立即预约
免费定制整装家居

免费定制整装家居

一站置家 全程无忧 一省到底
hide.png

当前位置: 首页 > 装修案例效果图 > 友谊城青苹果

友谊城青苹果 102平 新中式风格效果图

收藏
案例风格 新中式 案例户型 二居 案例面积 102平米
楼盘名称 友谊城青苹果 设计师 林凤装饰设计师 案例类型 改善性住宅

设计理念:新中式风格,摒弃了传统中式的死板,家具的选择更加随意,更加舒适。格栅,挂件,中式元素的装饰画,又让整个空间更具生动力,安静中带着美感,又具中式韵味。

客厅
第1张
第2张
第3张
餐厅
第1张
第2张
卧室
第1张
第2张
卫生间
第1张
厨房
第1张
过廊
第1张
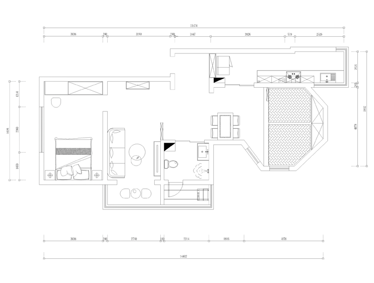
户型图
第1张
  • 案例详情

友谊城青苹果-102平米-新中式-客厅.jpg 友谊城青苹果-102平米-新中式-客厅2.jpg 友谊城青苹果-102平米-新中式-客厅3.jpg

友谊城青苹果102平2居室新中式风格林凤装饰的客厅是原来的次卧改成的,让客厅更加方正。外侧阳台的改造让客厅有了充足的光照。客厅主要以黑白灰为主色调。电视背景没有过多的装饰,灰色的乳胶漆让背景更加有质感更显安静。黑色的格栅代替厚重的墙体,增加空间的通透性,让视野更加开阔。

友谊城青苹果-102平米-新中式-餐厅.jpg 友谊城青苹果-102平米-新中式-餐厅2.jpg

友谊城青苹果102平2居室新中式风格林凤装饰的餐厅空间相对不大,胡桃木餐桌,配上金色的荷花挂画,中式的挂灯,简单的装饰,却恰到好处的彰显新中式的韵味。

友谊城青苹果-102平米-新中式-卧室.jpg 友谊城青苹果-102平米-新中式-卧室2.jpg

友谊城青苹果102平2居室新中式风格林凤装饰的主卧室,老人居住的房间,墙面以白色为主,床头做了灰色,让整个空间更显安静,舒适。

友谊城青苹果-102平米-新中式-卫生间.jpg

友谊城青苹果102平2居室新中式风格林凤装饰的卫生间是白色和灰色相结合的瓷砖,搭配原木色的浴室柜,干净利索,更加舒适。

友谊城青苹果-102平米-新中式-厨房.jpg

友谊城青苹果102平2居室新中式风格林凤装饰的厨房面积比较大,但是相对比较狭窄,橱柜选用浅木色和白色的结合,会增加厨房的亮度,配上白的方格砖,更加干净,明亮,整洁。

友谊城青苹果-102平米-新中式-过廊.jpg

友谊城青苹果102平2居室新中式风格林凤装饰的过廊

友谊城青苹果-102平米-新中式-平面图.png

案例设计师

林凤装饰设计师

设计师:林凤装饰设计师

从业时间:7年

设计理念:好的设计源于生活。

预约设计师

算算你家装修多少钱

报名即享丰厚赠品,享半价装修

免费报价
咨询热线:400-656-9909
20190221103704574636.jpg

精品设计案例

20180612134930523248.jpg 服务号二维码.jpg