立即预约 立即预约
免费定制整装家居

免费定制整装家居

一站置家 全程无忧 一省到底
hide.png

当前位置: 首页 > 装修案例效果图 > 金地檀府

金地檀府 85平 现代简约风格效果图

收藏
案例风格 现代简约 案例户型 二居 案例面积 85平米
楼盘名称 金地檀府 设计师 林凤设计师 案例类型 改善性住宅

设计理念:设计是解决问题的答案,而不是一种视觉形式!本案以浅灰色为主调,整体空间造型、色调简洁大方。

客厅
第1张
第2张
第3张
第4张
餐厅
第1张
卧室
第1张
第2张
卫生间
第1张
厨房
第1张
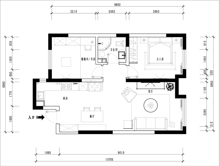
户型图
第1张
  • 案例详情

铁西金地檀府-85平-现代简约风格-客厅(首图).jpg 铁西金地檀府-85平-现代简约风格-客厅(首图)D.jpg 铁西金地檀府-85平-现代简约风格-客厅C.jpg 铁西金地檀府-85平-现代简约风格-客厅B.jpg

金地檀府85平2居室现代简约风格林凤装饰的客厅大面积以灰色为主调,电视背景运用了前后凹凸层次感的白色造型,与墙面灰色形成对比,使整体空间更干净简洁。电视嵌入造型墙、电视下方的条形茶镜起到了点睛之笔,打破了传统造型的单一的特点,使其造型关系更加完整。

铁西金地檀府-85平-现代简约风格-餐厅.jpg

金地檀府85平2居室现代简约风格林凤装饰的餐厅空间略小,所以我们利用闲置的墙面将它布置成卡座,既能有效的解决就餐问题,又能为居室增加更多的收纳空间。橙色吊灯作为点缀,增加了就餐时的温馨感。

铁西金地檀府-85平-现代简约风格-榻榻米.jpg 铁西金地檀府-85平-现代简约风格-主卧.jpg

【主卧室说明】主卧整体暖灰色为主调,局部床品运用黄色作为跳色。床头两边各自选用台灯+吊灯的设计手法,卧室床头吊灯设计别致,又能提升卧室格调。我们选用了当下很火的球形吊灯,它的自身形体加上柔和的灯光,调性很高,为整个卧室空间展现出不一样的情调。我们在床头棚面又添置了两盏明装射灯。而床头射灯也是卧室制造情调的高手,迷离的灯光、赏心悦目的设计,都能炮制一个浪漫的夜晚。

铁西金地檀府-85平-现代简约风格-卫生间.jpg

金地檀府85平2居室现代简约风格林凤装饰的卫生间墙面瓷砖采用鱼肚白,与深色浴室柜产生强烈对比,是整体空间感觉更加干净整洁。马桶上方的挂画解决了卫生间色彩单一的问题,增加空间的温度。

铁西金地檀府-85平-现代简约风格-厨房.jpg

金地檀府85平2居室现代简约风格林凤装饰的开放式厨房,很巧妙的提高了整体空间的利用率,形成一个开放式的烹饪就餐空间,增加了家人的互动性,同时营造出温馨的就餐环境,让居家生活的贴心快乐从清早开始就伴随全家人。

铁西金地檀府-85平-现代简约风格-平面方案.jpg

案例设计师

林凤设计师

设计师:林凤设计师

从业时间:5年

设计理念:设计是解决问题的答案,而不是一个视觉形式。

预约设计师

算算你家装修多少钱

报名即享丰厚赠品,享半价装修

免费报价
咨询热线:400-656-9909
20190221103704574636.jpg

精品设计案例

20180612134930523248.jpg 服务号二维码.jpg