立即预约 立即预约
免费定制整装家居

免费定制整装家居

一站置家 全程无忧 一省到底
hide.png

当前位置: 首页 > 装修案例效果图 > 华润幸福里

华润幸福里 98平 美式风格效果图

收藏
案例风格 美式 案例户型 三居 案例面积 98平米
楼盘名称 华润幸福里 设计师 林凤设计师 案例类型 改善性住宅

设计理念:设计是解决问题的答案,而不是一种视觉形式!本案为三居室简美风格,简美风格是美式古典风格的延续,简美风格的特色是将设计的元素、色彩、照明、原材料等简化到最少的程度,但是对材料的色彩质感要求很高。简美风格整体给人一种简约大气的气息,没有过多复杂的空间布局,每处都格外的干净利落,而且现代实用,无论是房顶的吊灯,还是脚下的地板,都没有琐碎多余的设计,表面光滑柔和,让人感觉温暖而舒适。

客厅
第1张
第2张
餐厅
第1张
卧室
第1张
第2张
卫生间
第1张
厨房
第1张
书房
第1张
门厅
第1张
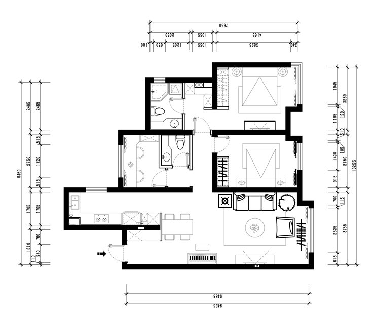
户型图
第1张
  • 案例详情

华润幸福里-98平-简美风格-客厅(首图).jpg 华润幸福里-98平-简美风格-客厅B.jpg

华润幸福里98平3居室简美风格林凤装饰的客厅大面积以米色为主调,电视背景沿袭古典美式的特色,保留了壁炉元素,端庄、典雅。壁炉是美式风格的装修元素,以其经典的造型,能起到很好的装饰效果,现在有电子壁炉,在保证效果的前提下,有很好的实用效果;壁炉的造型不是单独出现在装修中,现在往往通过尺寸的调整和周围空间的协调,成了电视背景装饰元素。白色理石砖与深咖色沙发的碰撞,使整体空间变得更沉稳了。局部的点光源为家里增加了温馨感。

华润幸福里-98平-简美风格-餐厅.jpg

华润幸福里98平3居室简美风格林凤装饰的餐厅空间略小,所以我们利用门厅玄关柜一侧与厨房相连接的墙面,作为餐厅区域,这样功能区划分明确,同时又不占用门厅厨房的过道空间,动线合理。餐桌选用具有美式复古特点的实木桌,搭配皮质餐椅,形成一种新旧碰撞的趣味感。餐厅一侧作为照片墙出现,将来可以添置老两口的摄影作品,在用餐时的同时享受自己的业余喜好是多么美的一件事。

华润幸福里-98平-简美风格-主卧.jpg 华润幸福里-98平-简美风格-主卧B.jpg

华润幸福里98平3居室简美风格林凤装饰的主卧以套卧的形式出现,步入式衣帽间,解决了老两口储存衣物的需求。墙面大面积米色壁纸与蓝色的窗帘、床品、地毯、形成冷暖对比。

华润幸福里-98平-简美风格-主卫.jpg

华润幸福里98平3居室简美风格林凤装饰的卫生间墙面瓷砖采用鱼肚白,与深色浴室柜产生强烈对比,使整体空间感觉更加干净整洁。超长的浴室柜增加了卫生间的储物功能,马桶旁边的开放格方便了业主的实用功能。

华润幸福里-98平-简美风格-厨房.jpg

华润幸福里98平3居室简美风格林凤装饰的厨房是餐厅+开放式厨房,中西厨结合,巧妙利用空间,将餐厅与厨房紧密相连,形成一个开放式的烹饪就餐空间.开放式厨房营造出温馨的就餐环境,让居家生活的贴心快乐从清早开始就伴随全家人。

华润幸福里-98平-简美风格-书房.jpg

华润幸福里98平3居室简美风格林凤装饰的书房

华润幸福里-98平-简美风格-门厅.jpg

华润幸福里98平3居室简美风格林凤装饰的玄关

华润幸福里-98平-简美风格-平面方案.jpg

案例设计师

林凤设计师

设计师:林凤设计师

从业时间:5年

设计理念:设计是解决问题的答案,而不是一个视觉形式。

预约设计师

算算你家装修多少钱

报名即享丰厚赠品,品质装修

免费报价
咨询热线:400-656-9909
20190221103704574636.jpg

精品设计案例

20180612134930523248.jpg 服务号二维码.jpg