立即预约 立即预约
免费定制整装家居

免费定制整装家居

一站置家 全程无忧 一省到底
hide.png

当前位置: 首页 > 装修案例效果图 > 金石小镇

金石小镇 130平 现代简约风格效果图

收藏
案例风格 现代简约 案例户型 四居 案例面积 130平米
楼盘名称 金石小镇 设计师 林凤设计师 案例类型 改善性住宅

设计理念:本案例定位为现代风格,业主不喜欢花哨的东西,喜欢颜色明亮,

客厅
第1张
第2张
第3张
餐厅
第1张
卧室
第1张
第2张
厨房
第1张
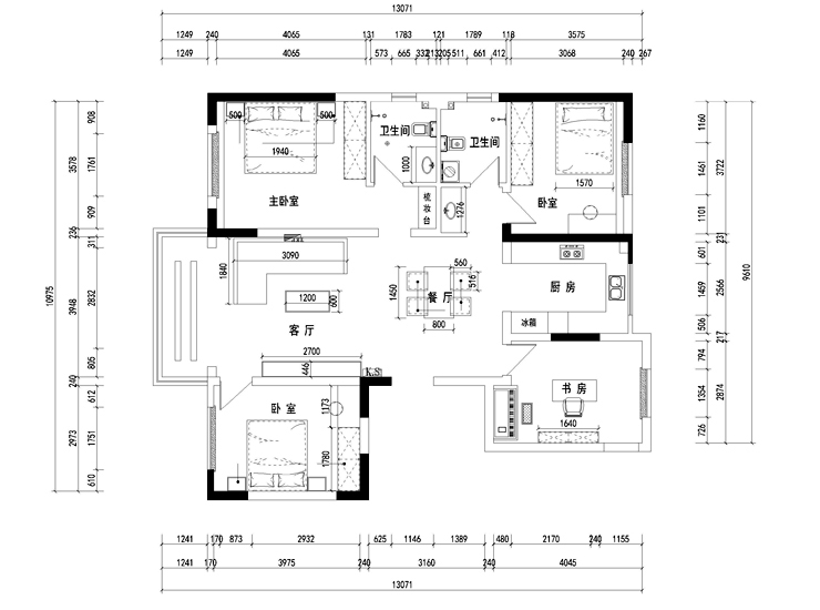
户型图
第1张
  • 案例详情

金石小镇-130平-现代风格-客厅.jpg 金石小镇-130平-现代风格-客.jpg 金石小镇-130平-现代风格-客厅餐厅.jpg

金石小镇130平4居室现代简约风格林凤装饰的客厅我们采用爵士白瓷砖配上黑色的木门 给人一种干净 大气的感觉,整体墙面以暖色为主,灰色布艺沙发加上明亮的色彩的装饰物起到点缀空间的作用。

金石小镇-130平-现代风格-餐厅.jpg

金石小镇130平4居室现代简约风格林凤装饰的餐厅,由于进门一进来就是餐厅,餐厅背景墙做了一个装饰,给餐厅多了一个亮点。由于空间有限,在餐厅背景挂一个色彩明亮挂画以及艺术吊灯,使空间丰富多彩。

金石小镇-130平-现代风格-次卧室.jpg 金石小镇-130平-现代风格-主卧室.jpg

【主卧室说明】卧室我们以粉灰色为主,床头背景紫色为主导,其他3面为白色,使空间感有层次,床头垂钓灯增强空间氛围。同时配上这种款式的床,使空间明亮又温馨。白色衣柜配上金属色条既美观又大气。

金石小镇-130平-现代风格-厨房.jpg

金石小镇130平4居室现代简约风格林凤装饰的厨房空间很大,可以做一个U型橱柜,既增加储物空间,同时操作起来也更为便捷更舒适,由于业主喜欢经常做饭,所以封闭厨房比开放式厨房更适合。

金石小镇-130平-现代风格-平面布局图.jpg

案例设计师

林凤设计师

设计师:林凤设计师

从业时间:8年

设计理念:合理划分空间,让设计融入生活,营造自然,品味,格调。

预约设计师

算算你家装修多少钱

报名即享丰厚赠品,品质装修

免费报价
咨询热线:400-656-9909
20190221103704574636.jpg

精品设计案例

20180612134930523248.jpg 服务号二维码.jpg