立即预约 立即预约
免费定制整装家居

免费定制整装家居

一站置家 全程无忧 一省到底
hide.png

当前位置: 首页 > 装修案例效果图 > 中瑞北欧云著

中瑞北欧云著 83平 北欧风格效果图

收藏
案例风格 北欧 案例户型 二居 案例面积 83平米
楼盘名称 中瑞北欧云著 设计师 李丹 案例类型 改善性住宅

设计理念:设计说明:简单的颜色配上,简单的点缀,让空间更加灵活。
设计师整体设计理念:以极简为主,从而有简单而大气的感觉。

客厅
第1张
第2张
第3张
第4张
餐厅
第1张
第2张
第3张
卧室
第1张
第2张
卫生间
第1张
门厅
第1张
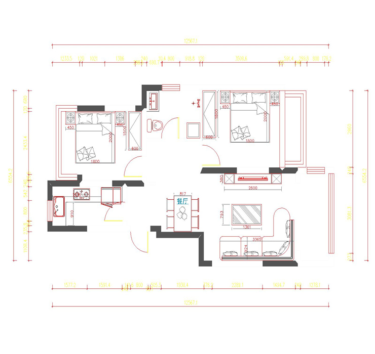
户型图
第1张
  • 案例详情

中瑞北欧云著-83平-北欧风格-客厅 (2).jpg 中瑞北欧云著-83平-北欧风格-电视背景墙.jpg 中瑞北欧云著-83平-北欧风格-客厅 (3).jpg 中瑞北欧云著-83平-北欧风格-客厅.jpg

中瑞北欧云著83平2居室北欧风格林凤装饰的客厅背景墙采用硅藻泥设计,即环保又有造型感,家具的选择也比较简单,以黑胡桃为主,配上浅色的布艺,北欧风格更加浓重一些。

中瑞北欧云著-83平-北欧风格-餐厅 (3).jpg 中瑞北欧云著-83平-北欧风格-餐厅 (2).jpg 中瑞北欧云著-83平-北欧风格-餐厅 (4).jpg

中瑞北欧云著83平2居室北欧风格林凤装饰的餐厅是经常使用之处,配上软包的座椅,让整个就餐环境更加舒适。

中瑞北欧云著-83平-北欧风格-卧室 (2).jpg 中瑞北欧云著-83平-北欧风格-卧室.jpg

中瑞北欧云著83平2居室北欧风格林凤装饰的卧室是经常所利用的地方,整体考虑舒适度为主,颜色的选择上,选择一些比较深沉的颜色。

中瑞北欧云著-83平-北欧风格-卫生间.jpg

中瑞北欧云著83平2居室北欧风格林凤装饰的卫生间空间比较小,在颜色上以浅色为主,用烤漆的柜子,更加明亮一些。

中瑞北欧云著-83平-北欧风格-玄关.jpg

中瑞北欧云著83平2居室北欧风格林凤装饰的玄关

中瑞北欧云著-83平-北欧风格-平面布置图.jpg

案例设计师

李丹

设计师:李丹

从业时间:5年

设计理念:用我的专业和你的想法,打造专业的家

预约设计师

算算你家装修多少钱

报名即享丰厚赠品,享半价装修

免费报价
咨询热线:400-656-9909
20190221103704574636.jpg

精品设计案例

20180612134930523248.jpg 服务号二维码.jpg