立即预约 立即预约
免费定制整装家居

免费定制整装家居

一站置家 全程无忧 一省到底
hide.png

当前位置: 首页 > 装修案例效果图 > 金地名京

金地名京 90平 美式风格效果图

收藏
案例风格 美式 案例户型 二居 案例面积 90平米
楼盘名称 金地名京 设计师 林凤装饰设计 案例类型 改善性住宅

设计理念:在简美风格设计特点追求的是极尽的自然,充满个性化,而且还比较自由现代,多采用纯色来进行整个房间的装修风格。

客厅
第1张
第2张
第3张
第4张
餐厅
第1张
卧室
第1张
卫生间
第1张
厨房
第1张
门厅
第1张
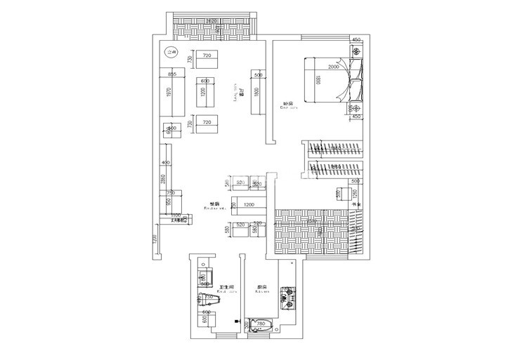
户型图
第1张
  • 案例详情

金地名京-90平-简美风格-过廊-2.jpg 金地名京-90平-简美风格-客厅-2.jpg 金地名京-90平-简美风格-客厅-1.jpg 金地名京-90平-简美风格-客厅-3.jpg

金地名京90平2居室美式风格林凤装饰的客厅我们采用深灰色系的壁纸,石膏线圈出了层次感,大大区分了整体造型比较有立体感,沙发背景使用挂画和装饰盘进行装饰,棚顶直接用直线边棚,增加美观性。

金地名京-90平-简美风格-餐厅-1.jpg

金地名京90平2居室美式风格林凤装饰的餐厅空间较大,把餐桌放置靠墙这样既有美观性还可以增加通过的空间。在对面位置做了嵌入式酒柜,大大增加了储酒空间。

金地名京-90平-简美风格-卧室-1.jpg

金地名京90平2居室美式风格林凤装饰的卧室,现代生活节奏的加快,家庭衣服的增多,为方便居住和存储两不误,北卧我们定制了整体的地台作为起居室重要的一部分。

金地名京-90平-简美风格-卫生间1.jpg

金地名京90平2居室美式风格林凤装饰的卫生间根据女主人的喜爱放置了大手盆,卫生间空间有限,洗衣机放到了淋浴的对面,方便使用。

金地名京-90平-简美风格-厨房-4.jpg

金地名京90平2居室美式风格林凤装饰的厨房的面积不是特别大,所以考虑冰箱放到了储酒区,为厨房节省大大的操作空间,方便厨房的电器和台面的空间。虽然空间不是特别大,但是我们效果做的到。

金地名京-90平-简美风格-门厅-1.jpg

金地名京90平2居室美式风格林凤装饰的玄关在进门对面位置设立玄关鞋柜,起到穿堂煞的作用,增加鞋物储纳空间。

金地名京-90平-简美风格-布局图.jpg

案例设计师

林凤装饰设计

设计师:林凤装饰设计

从业时间:9年

设计理念:追求艺术带给生活最美的体验

预约设计师

算算你家装修多少钱

报名即享丰厚赠品,享半价装修

免费报价
咨询热线:400-656-9909
20190221103704574636.jpg

精品设计案例

20180612134930523248.jpg 服务号二维码.jpg