立即预约 立即预约
免费定制整装家居

免费定制整装家居

一站置家 全程无忧 一省到底
hide.png

当前位置: 首页 > 装修案例效果图 > 金地檀府

金地檀府 130平 现代简约风格效果图

收藏
案例风格 现代简约 案例户型 三居 案例面积 130平米
楼盘名称 金地檀府 设计师 林凤设计师 案例类型 改善性住宅

设计理念:现代风格,是时尚、是趋势、亦是必然、更是喧哗城市中的一种信仰。它以它独特的简约造型提醒人们这是一种时尚,一种可以传承的时尚。它用它的形态告诉人们这是你的家,是你最温馨的避风港。本案是一位追求时尚的年轻人,时尚的元素,大胆的配色在本案中体现的淋漓尽致。整体颜色为灰绿色,可以给人以宁静优美的心情。外加整体配饰、颜色的搭配、空间的动线、都能体现本案业主真实的生活写照,和富有内涵的高贵品格。

客厅
第1张
第2张
餐厅
第1张
第2张
卧室
第1张
第2张
卫生间
第1张
厨房
第1张
过廊
第1张
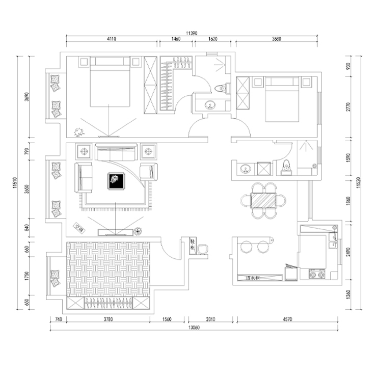
户型图
第1张
  • 案例详情

金地檀府-130平-现代风格-客厅.jpg 金地檀府-130平-现代风格-首图.jpg

金地檀府130平3居室现代风格林凤装饰的客厅整体墙面以灰绿色为主,电视墙采用两侧白色实木护墙板以及中心壁画做造型,给人一种色彩鲜艳明亮的感觉,让人坐在这个空间里会显得放松轻松的感觉,外加金属条的衬托,和软装的搭配,以及一个小型的书柜架,诠释出了现代的气息、室内空间的灵活性和灵动性。

金地檀府-130平-现代风格-餐厅1.jpg 金地檀府-130平-现代风格-餐厅2.jpg

金地檀府130平3居室现代风格林凤装饰的餐厅整体空间超级大,可以满足业主平时的吃饭休闲,又可以满足招待朋友时的聚餐畅谈。厨房和餐厅也在一起 开放式的厨房和餐厅在一起就像一对多年在一起的好朋友一样。西厨在外有一个小吧台 朋友来家一起坐在吧台上喝杯红酒聊聊家常、工作为双方的聊天提供了气氛也让人感到一种不拘束的愉快感。

金地檀府-130平-现代风格-次卧室.jpg 金地檀府-130平-现代风格-主卧室.jpg

金地檀府130平3居室现代风格林凤装饰的卧室空间体现简单大方,独自一种风格。整体色调为灰色调,外加木纹色的点缀,是整体效果更加丰富,富有内涵。窗户为飘窗,飘窗给人的感觉是温馨舒适。午后懒洋洋的在飘窗上喝咖啡,看书、小憩岂不是妙哉。

金地檀府-130平-现代风格-卫生间.jpg

金地檀府130平3居室现代风格林凤装饰的卫生间

金地檀府-130平-现代风格-厨房.jpg

金地檀府130平3居室现代风格林凤装饰的厨房为开放式厨房,因为空间超级大,做了中西厨,使整个空间看起来更加有空间感,层次感。中厨炒菜做饭,西厨可以弄些水果甜品,分工鲜明合理,更为生活增添了仪式感。

金地檀府-130平-现代风格-走廊.jpg

金地檀府130平3居室现代风格林凤装饰的走廊

金地檀府-130平-现代风格-户型图.jpg

案例设计师

林凤设计师

设计师:林凤设计师

从业时间:8年

设计理念:因生活而设计,因设计而美好,让你的生活环境,成为他人眼中风景。

预约设计师

算算你家装修多少钱

报名即享丰厚赠品,享半价装修

免费报价
咨询热线:400-656-9909
20190221103704574636.jpg

精品设计案例

20180612134930523248.jpg 服务号二维码.jpg