立即预约 立即预约
免费定制整装家居

免费定制整装家居

一站置家 全程无忧 一省到底
hide.png

当前位置: 首页 > 装修案例效果图 > 坤泰新界

坤泰新界 160平 轻奢风格效果图

收藏
案例风格 轻奢 案例户型 三居 案例面积 160平米
楼盘名称 坤泰新界 设计师 林凤设计师 案例类型 改善性住宅

设计理念:设计理念:全心全意做设计,踏踏实实做装修。设计是对生活的升华,设计是对美好的追求,设计更是对自己倾心倾意的一种肯定,无轻奢不设计。
设计说明: 轻奢风格的主要突出特点在于整体的时尚化和大胆化 ,必须由轻快明亮的效果达成理想的状态,整个风格的特色点睛之笔在于颜色的搭配和软装的精挑细选。颜色搭配的独特,材质的选择,缺一不可。

客厅
第1张
第2张
第3张
第4张
第5张
餐厅
第1张
卧室
第1张
卫生间
第1张
厨房
第1张
第2张
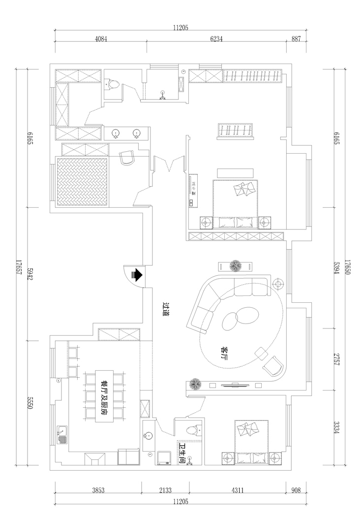
户型图
第1张
  • 案例详情

坤泰新界-160-轻奢-客厅1.jpg 坤泰新界-160-轻奢-客厅2.jpg 坤泰新界-160-轻奢-沙发背景.jpg 坤泰新界-160-轻奢-沙发背景2.jpg 坤泰新界-160-轻奢-首图.jpg

坤泰新界160平3居室轻奢风格林凤装饰的客厅木色调搭配白墙效果显得整体清新脱俗,浅色的沙发坐落在层次感很强嗯对地面上显得沉稳不失优雅。偶尔的跳跃的蓝色抱枕和黄色抱枕是整体颜色调配的“造型师”,木色门及木色踢脚线是元素呼应的重要组成部分。

坤泰新界-160-轻奢-餐厅1.jpg

坤泰新界160平3居室轻奢风格林凤装饰的餐厅位置原始棚有一道横梁。为了起到弱化的效果呼应的是如图的造型,轻奢风格不讲究对称,所以造型部分也运用了错落的手法,木质棚顶和白色棚顶呼应,不显沉重,反倒是让整个氛围活泼些许。

坤泰新界-160-轻奢-卧室.jpg

坤泰新界160平3居室轻奢风格林凤装饰的榻榻米卧室就是炭灰色的整体。其中也有些木色调,单看要比客厅的颜色深了一些,主要注重沉稳,漆面的壁纸彰显了时尚达人自己的特色,在卧室的空间大胆的用了乌色玻璃,让空间时尚更加具体化。

坤泰新界-160-轻奢-卫生间.jpg

坤泰新界160平3居室轻奢风格林凤装饰的卫生间的砖颜色也是简单大气,参加了一些木色调的砖上墙。起到几个空间互相呼应的效果。好的设计就在于每个空间的独特性,又不失去结合性 。

坤泰新界-160-轻奢-厨房1.jpg 坤泰新界-160-轻奢-厨房2.jpg

坤泰新界160平3居室轻奢风格林凤装饰的干净素雅的墙砖和白色的漆面橱柜,深色台面相搭配,更为在调节整个空间的氛围。干净利索的颜色,搭配起深色的橱柜达到一种视觉的冲击。橱柜的储物空间强大,足以满足爱厨房,爱做饭的你。

坤泰新界-160-轻奢-平面图.jpg

案例设计师

林凤设计师

设计师:林凤设计师

从业时间:8年

设计理念:先客户之忧而忧,后客户之乐而乐

预约设计师

算算你家装修多少钱

报名即享丰厚赠品,享半价装修

免费报价
咨询热线:400-656-9909
20190221103704574636.jpg

精品设计案例

20180612134930523248.jpg 服务号二维码.jpg