立即预约 立即预约
免费定制整装家居

免费定制整装家居

一站置家 全程无忧 一省到底
hide.png

当前位置: 首页 > 装修案例效果图 > 绿地海域香廷

绿地海域香廷 200平 美式风格效果图

收藏
案例风格 美式 案例户型 五居 案例面积 200平米
楼盘名称 绿地海域香廷 设计师 林凤设计师 案例类型 改善性住宅

设计理念:根据设计师与业主的沟通,发现业主喜欢的元素多为美式风格元素,所以本案装修风格定位为美式风格,地面为仿古砖,搭配深色原木家具。软装饰搭配丝绒,金银色丝线等,饰品摆件以粗纹理的瓷器和多色彩的配饰。
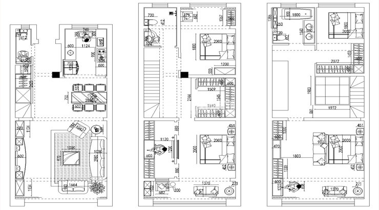
户型分析:
优点:本案例户型主要位置都比较宽敞,整体感很好。
缺点:客厅南侧是后扩进来的,所以有一道横梁,进户门位置有一个立柱是拆不掉的,楼梯有些陡。一楼卫生间有些小。

客厅
第1张
第2张
第3张
第4张
第5张
第6张
卧室
第1张
卫生间
第1张
厨房
第1张
户型图
第1张
  • 案例详情

绿地海域香廷-200平-美式风格-客厅01.jpg 绿地海域香廷-200平-美式风格-客厅03.jpg 绿地海域香廷-200平-美式风格-客厅02.jpg 绿地海域香廷-200平-美式风格-客厅05.jpg 绿地海域香廷-200平-美式风格-首图.jpg 绿地海域香廷-200平-美式风格-客厅04.jpg

绿地海域香廷200平4居室美式风格林凤装饰的客厅的电视背景墙是经过业主看好的家具摆出来的,因为举架高的原因,所以没有选用高低柜搭配,木本绿植和黑胶碟唱机增加了客厅的复古感和自然感。沙发是设计师特意调成的深绿色,业主原意是想做深咖色的,考虑整体配色关系,就把咖色改成了深绿色,让客厅空间色彩和层次更丰富。

绿地海域香廷-200平-美式风格-卧室.jpg

绿地海域香廷200平4居室美式风格林凤装饰的主卧室业主想做成欧式风格,还不想太复杂,所以只在床头做了大面积壁布,窗帘和床盖做冷色丝绒材质,小沙发做暖色,增加空间暖色分布比重。

绿地海域香廷-200平-美式风格-卫生间.jpg

绿地海域香廷200平4居室美式风格林凤装饰的卫生间比较小,经过拆改后布局重新规划。墙砖采用冷暖色搭配设计,淋浴区加了一些花样,让空间丰富了很多

绿地海域香廷-200平-美式风格-厨房.jpg

绿地海域香廷200平4居室美式风格林凤装饰的厨房做成开放式,深色橱柜,墙砖为米色砂岩感觉的,增加美式的粗狂感。.

绿地海域香廷-200平-美式风格-平面图.jpg

案例设计师

林凤设计师

设计师:林凤设计师

从业时间:20年

设计理念:您的梦想由我来实现。

预约设计师

算算你家装修多少钱

报名即享丰厚赠品,品质装修

免费报价
咨询热线:400-656-9909
20190221103704574636.jpg

精品设计案例

20180612134930523248.jpg 服务号二维码.jpg