立即预约 立即预约
免费定制整装家居

免费定制整装家居

一站置家 全程无忧 一省到底
hide.png

当前位置: 首页 > 装修案例效果图 > 中海和平之门

中海和平之门 89平 北欧风格效果图

收藏
案例风格 北欧 案例户型 二居 案例面积 89平米
楼盘名称 中海和平之门 设计师 慈英雪 案例类型 改善性住宅

设计理念:本设计方案以北欧风格为主,主色调为蓝灰色看着简洁清新搭配给人自然舒适感的原木色提升了整体的感觉。

客厅
第1张
第2张
餐厅
第1张
第2张
卧室
第1张
第2张
卫生间
第1张
厨房
第1张
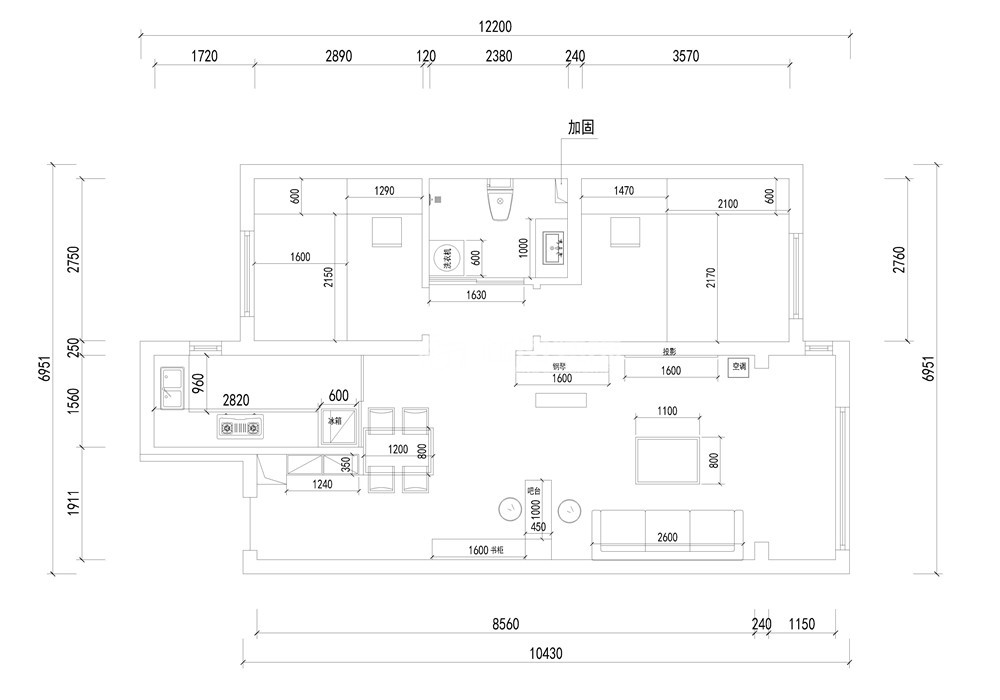
户型图
第1张
  • 案例详情

中海和平之门施工图-89平-北欧风格 -客厅.jpg 中海和平之门施工图-89平-北欧风格 -客厅2.jpg

中海和平之门89平2居室北欧风格林凤装饰的客户比较喜欢北欧装修风格,要求简单明快,主要以棚线为主,全屋都是硅藻泥制作,室内主要以蓝灰色墙面搭配原木色家具为主,整体时尚温馨。

中海和平之门施工图-89平-北欧风格 -餐厅.jpg 中海和平之门施工图-89平-北欧风格 -餐厅2.jpg

中海和平之门89平2居室北欧风格林凤装饰的餐厅主要也是以棚线为主,北欧风格的餐座椅搭配装饰吊灯使整个设计更加完美。

中海和平之门施工图-89平-北欧风格 -次卧.jpg 中海和平之门施工图-89平-北欧风格 -主卧.jpg

【主卧室说明】卧室是休息的地方,空间不必太明亮,浅咖色硅藻泥搭配原木色榻榻米,整个空间非常舒适,也比较容易入眠,达到了业主想要的效果。

中海和平之门施工图-89平-北欧风格 -卫生间.jpg 中海和平之门施工图-89平-北欧风格 -厨房.jpg

中海和平之门89平2居室北欧风格林凤装饰的厨房主要以灰色的地砖上墙为主,配上木纹色的橱柜,更加能突显图房主的品味。

中海和平之门施工图-89平-北欧风格.jpg

案例设计师

慈英雪

设计师:慈英雪

从业时间:8年

设计理念:做有情感的设计,做符合生活方式的设计,无限优化生活空间

预约设计师

算算你家装修多少钱

报名即享丰厚赠品,享半价装修

免费报价
咨询热线:400-656-9909
20190221103704574636.jpg

精品设计案例

20180612134930523248.jpg 服务号二维码.jpg