立即预约 立即预约
免费定制整装家居

免费定制整装家居

一站置家 全程无忧 一省到底
hide.png

当前位置: 首页 > 装修案例效果图 > 丽晶公馆

丽晶公馆 74平 北欧风格效果图

收藏
案例风格 北欧 案例户型 二居 案例面积 74平米
楼盘名称 丽晶公馆 设计师 林凤设计师 案例类型 改善性住宅

设计理念:本案设计整体风格简约,自然。在空间功能使用完备的前提下为业主呈现了一个温馨的居住环境。

客厅
第1张
第2张
餐厅
第1张
第2张
卧室
第1张
厨房
第1张
衣帽间
第1张
门厅
第1张
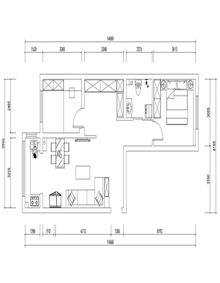
户型图
第1张
  • 案例详情

丽晶公馆-74平-北欧风格-客厅1.jpg 丽晶公馆-74平-北欧风格-客厅2.jpg

丽晶公馆74平2居室北欧风格林凤装饰的客厅整体简洁明快,原木色与白色相间的家具给人感觉清新自然,电视背景墙上搭配了白色文化砖增加了空间的层次感。

丽晶公馆-74平-北欧风格-餐厅1.jpg 丽晶公馆-74平-北欧风格-餐厅2.jpg

丽晶公馆74平2居室北欧风格林凤装饰的餐厅上方的六角餐灯与墙面的六角装饰画线条呼应,简洁优美,再与小巧的方桌向搭配,让客厅区域变得小巧温馨。

丽晶公馆-74平-北欧风格-卧室.jpg

丽晶公馆74平2居室北欧风格林凤装饰的主卧室主要以纯白色为主,与亮黄色色窗帘温暖搭配,整个空间给人以温馨舒适的感觉。

丽晶公馆-74平-北欧风格-厨房.jpg

丽晶公馆74平2居室北欧风格林凤装饰的厨房是封闭式,厨柜采用上柜白色门板与下柜原木色门板相搭配,灰色的墙砖,让整个厨房空间简洁,干净。

丽晶公馆-74平-北欧风格-衣帽间.jpg

丽晶公馆74平2居室北欧风格林凤装饰的衣帽间

丽晶公馆-74平-北欧风格-玄关.jpg

丽晶公馆74平2居室北欧风格林凤装饰的玄关

丽晶公馆-74平-北欧风格-平面图.jpg

案例设计师

林凤设计师

设计师:林凤设计师

从业时间:10年

设计理念:以人为本

预约设计师

算算你家装修多少钱

报名即享丰厚赠品,品质装修

免费报价
咨询热线:400-656-9909
20190221103704574636.jpg

精品设计案例

20180612134930523248.jpg 服务号二维码.jpg