立即预约 立即预约
免费定制整装家居

免费定制整装家居

一站置家 全程无忧 一省到底
hide.png

当前位置: 首页 > 装修案例效果图 > 碧桂园公园里

碧桂园公园里 162平 美式风格效果图

收藏
案例风格 美式 案例户型 四居 案例面积 162平米
楼盘名称 碧桂园公园里 设计师 林凤设计师 案例类型 改善性住宅

设计理念:由于房主在装修前去商场对家具风格做了了解~最终将家里装修风格定位为美式风格!

客厅
第1张
第2张
第3张
第4张
餐厅
第1张
卧室
第1张
厨房
第1张
休闲区
第1张
门厅
第1张
第2张
第3张
过廊
第1张
第2张
第3张
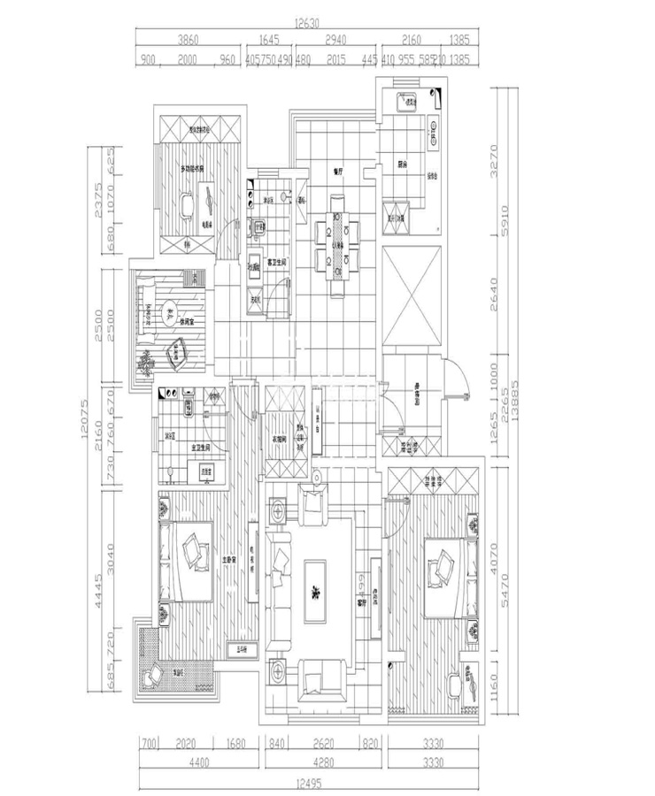
户型图
第1张
  • 案例详情

碧桂园公园里-162平-美式风格-电视墙.jpg 碧桂园公园里-162平-美式风格-客厅 (2).jpg 碧桂园公园里-162平-美式风格-客厅-(2).jpg 碧桂园公园里-162平-美式风格-客厅.jpg

碧桂园公园里162平4居室美式风格林凤装饰的客厅整体简洁明快,在进门通往卧室过道扩宽 使过道空间到休闲区更加通透,整个空间最佳设计点为 客厅通往儿童房用护墙板电视背景墙做的隐形门,说到“儿童房”(也是上高中的大男孩了哈哈)空间设计也是房主最为上心的一个空间。

碧桂园公园里-162平-美式风格-餐厅.jpg

碧桂园公园里162平4居室美式风格林凤装饰的餐厅

碧桂园公园里-162平-美式风格-卧室.jpg

碧桂园公园里162平4居室美式风格林凤装饰的卧室

碧桂园公园里-162平-美式风格-厨房.jpg

碧桂园公园里162平4居室美式风格林凤装饰的厨房

碧桂园公园里-162平-美式风格-休闲室.jpg

碧桂园公园里162平4居室美式风格林凤装饰的休闲区

碧桂园公园里-162平-美式风格-门厅 (2).jpg 碧桂园公园里-162平-美式风格-门厅-(2).jpg 碧桂园公园里-162平-美式风格-门厅.jpg

碧桂园公园里162平4居室美式风格林凤装饰的玄关

碧桂园公园里-162平-美式风格-过道 (2).jpg 碧桂园公园里-162平-美式风格-过道-(2).jpg 碧桂园公园里-162平-美式风格-过道.jpg

碧桂园公园里162平4居室美式风格林凤装饰的过廊

碧桂园公园里-162平-美式风格-平面图.jpg

案例设计师

林凤设计师

设计师:林凤设计师

从业时间:10年

设计理念:以人为本

预约设计师

算算你家装修多少钱

报名即享丰厚赠品,品质装修

免费报价
咨询热线:400-656-9909
20190221103704574636.jpg

精品设计案例

20180612134930523248.jpg 服务号二维码.jpg