立即预约 立即预约
免费定制整装家居

免费定制整装家居

一站置家 全程无忧 一省到底
hide.png

当前位置: 首页 > 装修案例效果图 > 华强城

华强城 105平 北欧风格效果图

收藏
案例风格 北欧 案例户型 二居 案例面积 105平米
楼盘名称 华强城 设计师 林凤设计师 案例类型 改善性住宅

设计理念:本案是北欧风格,原木的温度,搭配天地墙中性色系做基地,米灰色的墙体和地面,营造出温馨,静谧的室内感觉,让人回到家里就有一种放松的心情,很适合两个年轻人。

  • 案例详情

华强城-105平-北欧风格-客厅1.jpg 华强城-105平-北欧风格-客厅.jpg 华强城-105平-北欧风格-客厅2.jpg 华强城-105平-北欧风格-客厅3.jpg

华强城105平2居室北欧风格林凤装饰的客厅由于楼层高度不太高,所以尽量采用地砖材质,增加屋内反光效果,增强屋内光线,大面积采用中性色系,家具和软装布艺采用原木和灰色系,给人干净明快的感觉,屋内的大多数家具和灯具的线条感相互呼应,立体感明朗。

华强城-105平-北欧风格-餐厅.jpg

华强城105平2居室北欧风格林凤装饰的餐厅餐桌以原木色家具和客厅相呼应,餐厅的吊灯采用三个组合灯,餐厅背景延伸到餐厅碰面,色系加深,突出餐厅主轴。

华强城-105平-北欧风格-次卧室.jpg 华强城-105平-北欧风格-次卧室1.jpg 华强城-105平-北欧风格-次卧室2.jpg 华强城-105平-北欧风格-主卧室.jpg 华强城-105平-北欧风格-主卧室1.jpg 华强城-105平-北欧风格-主卧室2.jpg

华强城105平2居室北欧风格林凤装饰的卧室整体墙面碰面都采用白色乳胶漆,地面和家具的色彩采用原木色,柜体也采用原木色和白色混色,整体色系温暖,床头采用布艺床头,舒适柔软,床头的组合挂画增加我内北欧风格的元素,让整体空间给人一种想要入睡的感觉。

华强城-105平-北欧风格-卫生间.jpg 华强城-105平-北欧风格-卫生间1.jpg 华强城-105平-北欧风格-卫生间2.jpg

华强城105平2居室北欧风格林凤装饰的卫生间墙面以灰色理石纹理为准,搭配白色洗漱柜,空间显得干净,时尚,干湿分离的设计让卫生间的使用率得到放大,不会因为同时使用而显得拥挤。增加洗漱去壁龛省去了五金挂件,美观实用。

华强城-105平-北欧风格-厨房.jpg 华强城-105平-北欧风格-厨房1.jpg 华强城-105平-北欧风格-厨房2.jpg

华强城105平2居室北欧风格林凤装饰的厨房墙砖采用白色黑格子砖,整体橱柜采用原木色,和其他空间色系一致,将原有厨房阳台空间打开,增加储物盒功能区,预留双开门冰箱空间,和电器区。

华强城-105平-北欧风格-阳台.jpg

华强城105平2居室北欧风格林凤装饰的阳台

华强城-105平-北欧风格-门厅.jpg

华强城105平2居室北欧风格林凤装饰的玄关

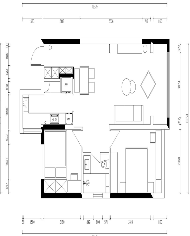
华强城-105平-北欧风格-平面图.jpg

案例设计师

林凤设计师

设计师:林凤设计师

从业时间:5年

设计理念:经验和习惯的沉淀,时尚与美观的结合

预约设计师

算算你家装修多少钱

报名即享丰厚赠品,享半价装修

免费报价
咨询热线:400-656-9909
20190221103704574636.jpg

精品设计案例

20180612134930523248.jpg 服务号二维码.jpg