立即预约 立即预约
免费定制整装家居

免费定制整装家居

一站置家 全程无忧 一省到底
hide.png

当前位置: 首页 > 装修案例效果图 > 越秀星汇云锦

越秀星汇云锦 140平 港式风格效果图

收藏
案例风格 港式 案例户型 二居 案例面积 140平米
楼盘名称 越秀星汇云锦 设计师 杨达 案例类型 改善性住宅

设计理念:本案例极简的港式现代风格,用单一的黑灰白为主色相,略配一些低纯度的颜色,与黑灰白色温相同,不会影响整个风格颜色,色彩的拼接与色彩的搭配完美协调。

客厅
第1张
第2张
第3张
第4张
第5张
餐厅
第1张
第2张
第3张
卧室
第1张
卫生间
第1张
厨房
第1张
门厅
第1张
过廊
第1张
第2张
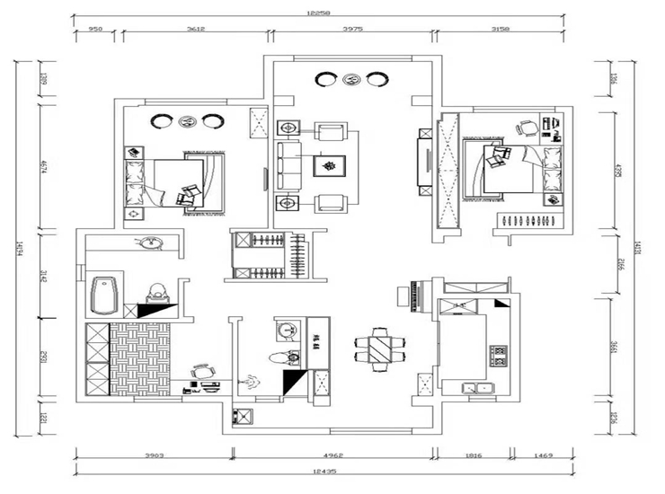
户型图
第1张
  • 案例详情

越秀星汇云锦-140平-港式风格-客厅 (2).jpg 越秀星汇云锦-140平-港式风格-客厅 (4).jpg 越秀星汇云锦-140平-港式风格-客厅.jpg 越秀星汇云锦-140平-港式风格-客厅 (3).jpg 越秀星汇云锦-140平-港式风格-首图.jpg

越秀星汇云锦140平2居室港式风格林凤装饰的客厅所展现一个休闲的氛围,简单舒适,大理石电视背景墙的应用,又让空间不缺乏庄重感觉,爵士白大理石与整个空间又可以完美的结合。

越秀星汇云锦-140平-港式风格-餐厅.jpg 越秀星汇云锦-140平-港式风格-餐厅 (2).jpg 越秀星汇云锦-140平-港式风格-餐厅 (3).jpg

越秀星汇云锦140平2居室港式风格林凤装饰的餐厅采用金属感较强感觉,家具、吊顶、落地灯等主题结构都是金属感觉,让整个空间相互联系,相互呼应,色彩也是与金属感色彩一致,美观、庄重,而且色彩很大气。

群升新天地-112平-现代风格-主卧.jpg

越秀星汇云锦140平2居室港式风格林凤装饰的卧室是提供休息的地方,讲究舒适,浅灰色的墙面搭配灰白纹理瓷砖的设计,以及金属色床品搭配色彩缤纷的抱枕,使得私密空间简洁又温馨。淡灰色的窗帘平添几分温柔。

群升新天地-112平-现代风格-卫生间.jpg

越秀星汇云锦140平2居室港式风格林凤装饰的卫浴间主要以灰色为主色系,浅灰色的地砖与白色的墙砖凸现出整个卫生间的简洁效果,灰黑色的浴室柜配上金属边条的浴室镜更加凸显卫生间高大上的气氛。

越秀星汇云锦-140平-港式风格-西厨.jpg

越秀星汇云锦140平2居室港式风格林凤装饰的厨房采用L型布局,将空间最大化利用,灰色橱柜搭配白色大理石操作台面,整体感觉也是温馨又时尚,做饭的格调都显得好大方。

越秀星汇云锦-140平-港式风格-玄关.jpg

越秀星汇云锦140平2居室港式风格林凤装饰的玄关

越秀星汇云锦-140平-港式风格-过廊 (2).jpg 越秀星汇云锦-140平-港式风格-过廊.jpg

越秀星汇云锦140平2居室港式风格林凤装饰的过廊

越秀星汇云锦-140平-港式-户型图.jpg

案例设计师

杨达

设计师:杨达

从业时间:10年

设计理念:精雕细琢,返璞归真。

预约设计师

算算你家装修多少钱

报名即享丰厚赠品,享半价装修

免费报价
咨询热线:400-656-9909
20190221103704574636.jpg

精品设计案例

20180612134930523248.jpg 服务号二维码.jpg