立即预约 立即预约
免费定制整装家居

免费定制整装家居

一站置家 全程无忧 一省到底
hide.png

当前位置: 首页 > 装修案例效果图 > 中海康城

中海康城 88平 轻奢风格效果图

收藏
案例风格 轻奢 案例户型 二居 案例面积 88平米
楼盘名称 中海康城 设计师 林凤设计师 案例类型 改善性住宅

设计理念:本案的设计理念是打造舒适的居住环境的轻奢风格,把每一个空间做到舒适的最大化,让客户真正的体验到家居舒适度给人们带来的幸福感。其次是用配饰来装点局部空间,让整个空间赋予美感。

客厅
第1张
第2张
餐厅
第1张
卧室
第1张
第2张
卫生间
第1张
厨房
第1张
第2张
门厅
第1张
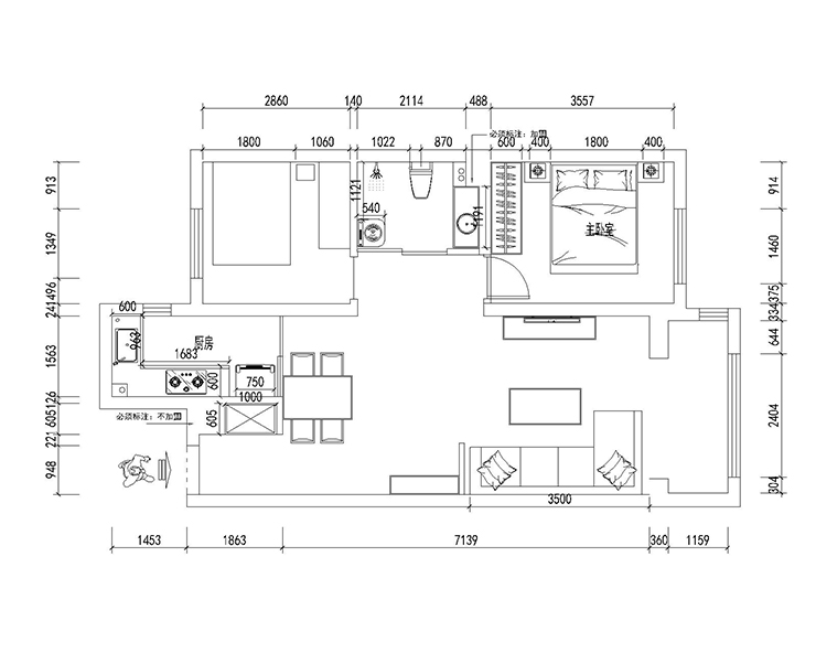
户型图
第1张
  • 案例详情

中海康城-88平-现代轻奢-首图.jpg 中海康城-88平-现代轻奢-客厅1.jpg

入户玄关采用换鞋凳和鞋柜的组合增添实用性,客厅的亮点是电视背景墙采用大理石加木饰面的结构配合金属收边再加上完美的比例来展现空间的奢华美感。窗帘采用蓝色加橙色的色彩搭配与地毯抱枕相呼应点缀空间活泼年轻的氛围,墙面地面采用灰色背景映衬整体氛围,背景墙比例线条装饰画灯具的颜色线条每一处的搭配也体现了设计师的用心。

中海康城-88平-现代轻奢-餐厅.jpg

餐厅的最大亮点是与鞋柜相连的边柜,一体的设计及方便了用餐也为空间增添了活力,既美观又实用。

中海康城-88平-现代轻奢-客卧室.jpg 中海康城-88平-现代轻奢-主卧室.jpg

卧室床头采用粉色背景,配合粉色窗帘,完全展现业主的一颗少女心,在这种氛围中休息完全是一种享受。

中海康城-88平-现代轻奢-卫生间.jpg

卫生间采用大理石纹理瓷砖使得低调的奢华,奢华感无处不在,浴屏干湿分离,增添实用性,手盆选用黑色框架收边既实用又美观。

中海康城-88平-现代轻奢-厨房.jpg 中海康城-88平-现代轻奢-厨房2.jpg

厨房的墙砖花砖配合白色烤漆的搭配既年轻又时尚,业主在烹饪美食时一定心情愉悦,乐在其中。

中海康城-88平-现代轻奢-门厅.jpg 中海康城-88平-现代轻奢-平面图.jpg

案例设计师

林凤设计师

设计师:林凤设计师

从业时间:7年

设计理念:以人为本,用心设计,打造最适合你个性空间

预约设计师

算算你家装修多少钱

报名即享丰厚赠品,品质装修

免费报价
咨询热线:400-656-9909
20190221103704574636.jpg

精品设计案例

20180612134930523248.jpg 服务号二维码.jpg