立即预约 立即预约
免费定制整装家居

免费定制整装家居

一站置家 全程无忧 一省到底
hide.png

当前位置: 首页 > 装修案例效果图 > 雅居乐花园

雅居乐花园 145平 新中式风格效果图

收藏
案例风格 新中式 案例户型 三居 案例面积 145平米
楼盘名称 雅居乐花园 设计师 林凤装饰全案设计师 案例类型 改善性住宅

设计理念:整体设计是一家具为切入点,做整体搭配,整个空间设计简单,明亮,实用。

客厅
第1张
第2张
第3张
餐厅
第1张
第2张
卧室
第1张
卫生间
第1张
第2张
厨房
第1张
书房
第1张
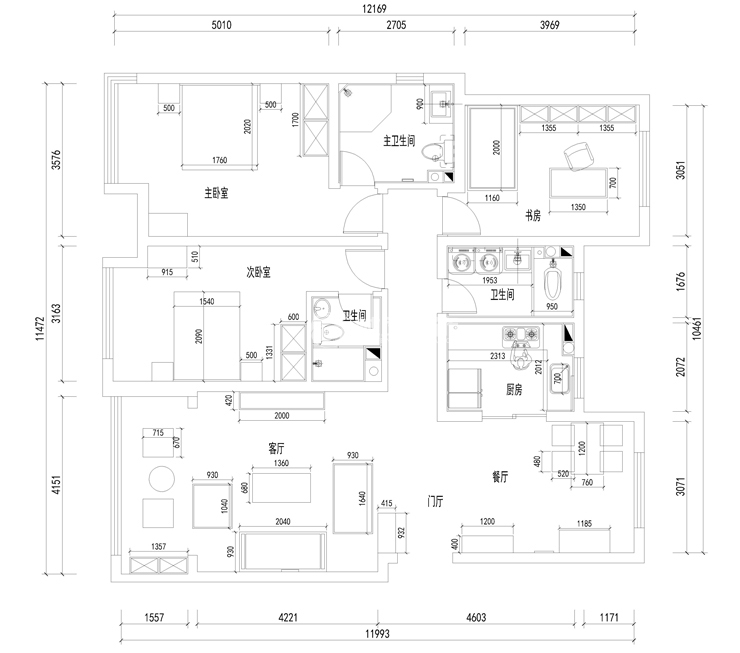
户型图
第1张
  • 案例详情

雅居乐花园-145平-新中式风格-客厅.jpg 雅居乐花园-145平-新中式风格-沙发背景墙.jpg 雅居乐花园-145平-新中式风格-首图.jpg

雅居乐花园145平3居室新中式风格林凤装饰的客厅以新中式为主,家具材质采用全实木家具,增加中式家具的质感,棚面与墙面都没有做过多的造型,墙面采用了家具与装饰品的搭配,让原本比较简单的墙面增加了立体感,让整个客厅空间简洁大气同时,不失中式风格的雅致。

雅居乐花园-145平-新中式风格-餐厅.jpg 雅居乐花园-145平-新中式风格-餐厅1.jpg

雅居乐花园145平3居室新中式风格林凤装饰的餐厅空间很大,但是餐厅背景墙空间比较小,并且应业主要求餐桌想靠在墙边,因此在软装配饰方面采用了一定的设计,四幅组合画恰到呼应了棚顶的餐吊,黄色的画品与黄色金属灯饰巧妙的提亮了餐厅的色调,让主人用餐更加有一种愉悦的心情!

雅居乐花园-145平-新中式风格-主卧.jpg

雅居乐花园145平3居室新中式风格林凤装饰的卧室空间墙面采用白色为主色调,来衬托新中式家具的美感,同时让空间显的不那么狭小,让卧室空间更加明亮。

雅居乐花园-145平-新中式风格-客卫.jpg 雅居乐花园-145平-新中式风格-卫生间.jpg

【客卫生间说明】采用冷色系的木纹瓷砖,让原本比较单调空间,通过木纹石墙砖的设计,在视觉上拉伸卫生间的空间。让空间具有延伸感。

雅居乐花园-145平-新中式风格-厨房.jpg

雅居乐花园145平3居室新中式风格林凤装饰的厨房的墙地砖为淡灰色,橱柜则采用全实木质感的门板,材质与餐厅相互呼应。

雅居乐花园-145平-新中式风格-书房.jpg

雅居乐花园145平3居室新中式风格林凤装饰的书房

雅居乐花园-145平-新中式风格-平面图.jpg

案例设计师

林凤装饰全案设计师

设计师:林凤装饰全案设计师

从业时间:12年

设计理念:应时而变,为未来生活而设计

预约设计师

算算你家装修多少钱

报名即享丰厚赠品,品质装修

免费报价
咨询热线:400-656-9909
20190221103704574636.jpg

精品设计案例

20180612134930523248.jpg 服务号二维码.jpg