立即预约 立即预约
免费定制整装家居

免费定制整装家居

一站置家 全程无忧 一省到底
hide.png

当前位置: 首页 > 装修案例效果图 > 小石城城中墅

小石城城中墅 275平 港式风格效果图

收藏
案例风格 港式 案例户型 四居 案例面积 275平米
楼盘名称 小石城城中墅 设计师 林凤装饰设计师 案例类型 改善性住宅

设计理念:此案为港式混搭风格,整体硬装更偏简约风格,注重软装的搭配所营造出来的氛围。

客厅
第1张
第2张
第3张
餐厅
第1张
卧室
第1张
第2张
第3张
卫生间
第1张
第2张
厨房
第1张
户型图
第1张
第2张
第3张
  • 案例详情

石城城中墅-275平-港式混搭-客厅2.jpg 石城城中墅-275平-港式混搭-客厅.jpg 石城城中墅-275平-港式混搭-客厅3.jpg

小石城城中墅275平4居室港式风格林凤装饰的客厅电视背景墙 采用饰面板造型,天然理石、内嵌虚光、不对称的设计手法,木板与理石质感的碰撞 彰显业主高级的品味。

石城城中墅-275平-港式混搭-餐厅.jpg

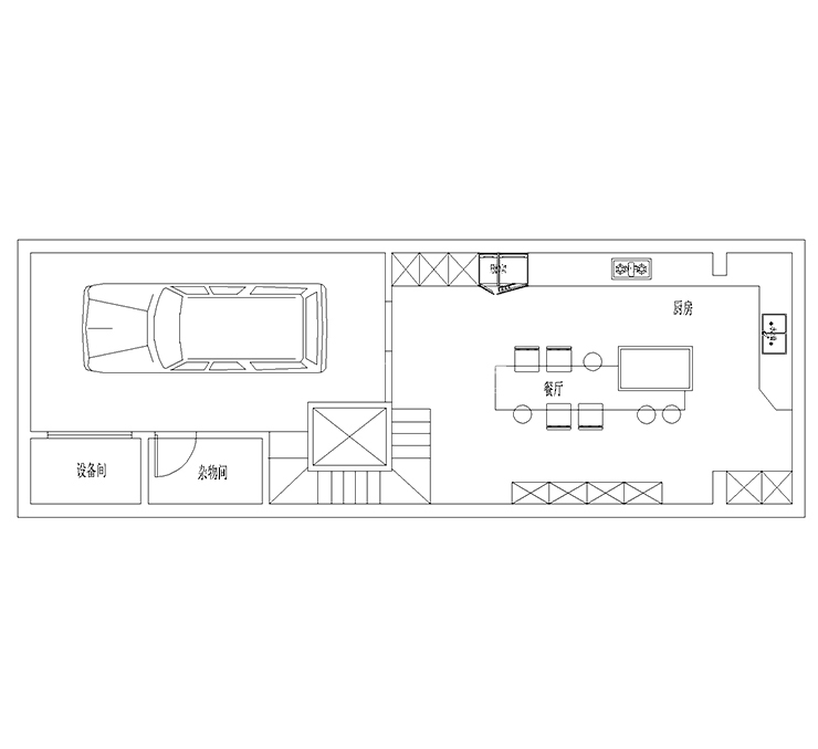
小石城城中墅275平4居室港式风格林凤装饰的餐区与厨房融合在一起,餐桌与中岛台相接 不仅效果好,也为后期使用带来便利。家庭聚会提供更好的空间。

石城城中墅-275平-港式混搭-2楼次卧.jpg 石城城中墅-275平-港式混搭-2楼主卧.jpg 石城城中墅-275平-港式混搭-2楼主卧2.jpg

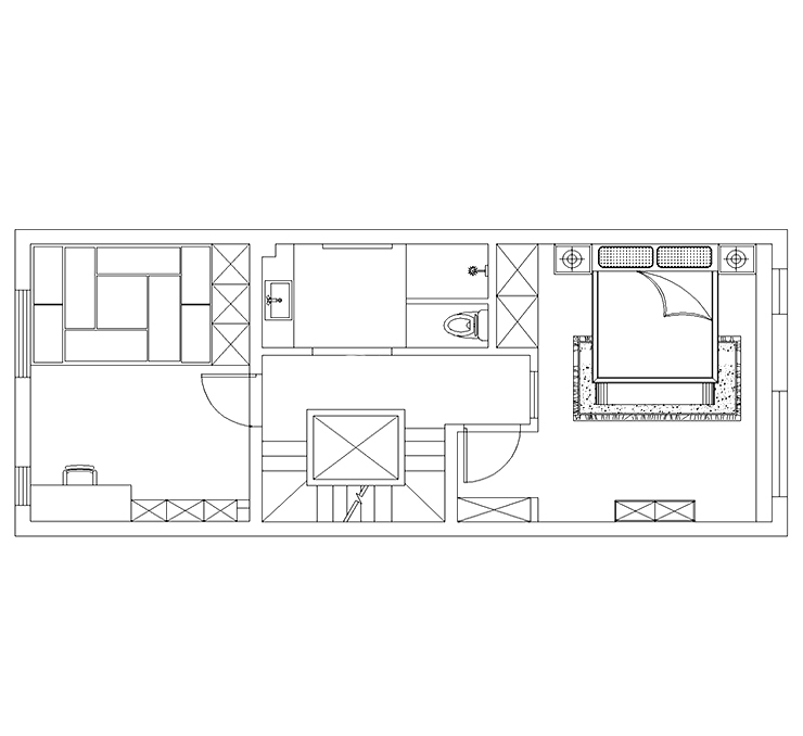
【主卧室说明】卧室的风格也与整体的元素相呼应 定制的床头板 与地板 衣柜增强木质的质感。

石城城中墅-275平-港式混搭-卫生间.jpg 石城城中墅-275平-港式混搭-卫生间2.jpg

小石城城中墅275平4居室港式风格林凤装饰的卫生间的布局采用当下最流行的布置方式,脸盆、淋浴、马桶 都有自己的空间,也是平时使用最便利的方式 分离式卫生间设计。

石城城中墅-275平-港式混搭-厨房.jpg

小石城城中墅275平4居室港式风格林凤装饰的厨房改为地下室,并且做的开放式厨房 空间很大,所有把餐桌与厨房融合一起,高级灰的橱柜门板 搭配木纹门板 使得空间既神秘又高级。

石城城中墅-275平-港式混搭-餐厅厨房平面.jpg 石城城中墅-275平-港式混搭-二楼平面.jpg 石城城中墅-275平-港式混搭-一楼平面.jpg

案例设计师

林凤装饰设计师

设计师:林凤装饰设计师

从业时间:6年

设计理念:设计源于生活,生活因设计而改变。

预约设计师

算算你家装修多少钱

报名即享丰厚赠品,享半价装修

免费报价
咨询热线:400-656-9909
20190221103704574636.jpg

精品设计案例

20180612134930523248.jpg 服务号二维码.jpg