立即预约 立即预约
免费定制整装家居

免费定制整装家居

一站置家 全程无忧 一省到底
hide.png

当前位置: 首页 > 装修案例效果图 > 融城时代

融城时代 101平 现代简约风格效果图

收藏
案例风格 现代简约 案例户型 二居 案例面积 101平米
楼盘名称 融城时代 设计师 林凤装饰设计师 案例类型 改善性住宅

设计理念:本案以简洁明快的温馨色调为主,空间要明亮时尚感。所以,将色调设计定位于温馨色于浅灰色,客厅地面主要以浅灰色地砖,使平淡的空间中,增加温馨时尚感。

客厅
第1张
第2张
第3张
第4张
餐厅
第1张
卧室
第1张
卫生间
第1张
厨房
第1张
门厅
第1张
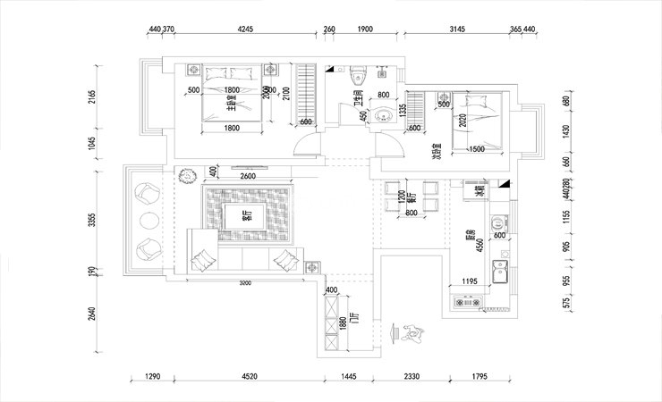
户型图
第1张
  • 案例详情

融城时代-101平-现代风格-客厅.jpg 融城时代-101平-现代风格-客厅1.jpg 融城时代-101平-现代风格-沙发.jpg 融城时代-101平-现代风格-首图.jpg

融城时代101平2居室现代风格林凤装饰的客厅浅灰色地砖将总体餐厅客厅厨房连贯效果。客厅沙发灰色布艺风格,搭配其他色彩靠垫,提高空间色彩,沙发包裹感墙,给客户带来舒适感。

融城时代-101平-现代风格-餐厅.jpg

融城时代101平2居室现代风格林凤装饰的餐厅于厨房想连接,也呈现餐厅空间明亮宽大,木质餐桌温馨舒适,搭配餐厅墙面挂画,空间感十足。

融城时代-101平-现代风格-卧室.jpg

融城时代101平2居室现代风格林凤装饰的主卧室灰色壁纸墙面,温馨好打理。皮质床头舒适柔软,床头棚面需光设计,让卧室增加温馨效果。

融城时代-101平-现代风格-卫生间.jpg

融城时代101平2居室现代风格林凤装饰的卫生间墙面铺设仿大灰色理石纹理瓷砖铺贴使空间呈现高档大气效果,洗漱柜暖色理石台面温馨好打理。

融城时代-101平-现代风格-厨房.jpg

融城时代101平2居室现代风格林凤装饰的开放式厨房,餐厅厨房视觉荣威一体,呈现空间最大化,厨房白色吸塑造型明,干净的直线条搭配理石台面,提示橱柜档次,墙面白色防理石瓷砖干净简洁,让业主有个愉快的烹饪空间。

融城时代-101平-现代风格-门厅.jpg

融城时代101平2居室现代风格林凤装饰的玄关

融城时代-101平-现代风格-平面图.jpg

案例设计师

林凤装饰设计师

设计师:林凤装饰设计师

从业时间:11年

设计理念:为生活增加灵魂,描绘颜色。适合的才是合适的!

预约设计师

算算你家装修多少钱

报名即享丰厚赠品,享半价装修

免费报价
咨询热线:400-656-9909
20190221103704574636.jpg

精品设计案例

20180612134930523248.jpg 服务号二维码.jpg