立即预约 立即预约
免费定制整装家居

免费定制整装家居

一站置家 全程无忧 一省到底
hide.png

当前位置: 首页 > 装修案例效果图 > 时代公园里

时代公园里 61平 现代简约风格效果图

收藏
案例风格 现代简约 案例户型 二居 案例面积 61平米
楼盘名称 时代公园里 设计师 林凤装饰设计师 案例类型 改善性住宅

设计理念:简约不等于简单,经过深思熟虑后经过创新得出设计和思路的延展,不是简单“堆砌”和平淡的“摆放”,它凝结着设计师的独具匠心,既美观又实用。

客厅
第1张
第2张
餐厅
第1张
卧室
第1张
第2张
卫生间
第1张
第2张
厨房
第1张
第2张
门厅
第1张
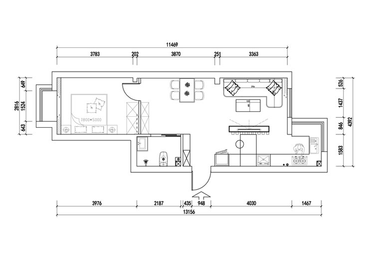
户型图
第1张
  • 案例详情

世代公园里-61平-现代风格-客厅1.jpg 世代公园里-61平-现代风格-首图.jpg

时代公园里61平2居室现代风格林凤装饰的客厅主要以浅灰色为主,家具选用原木色以及黑色进行搭配,空间内没有突出的亮色,因业主两人工作比较繁忙,希望回到家有安静的环境,所以这种搭配比较适合,并且在原户型的基础做了一些改动,扩大室内空间,对整体空间规划有极大好处。

世代公园里-61平-现代风格-餐厅.jpg

时代公园里61平2居室现代风格林凤装饰的餐厅区域与客厅区域紧密连,选用了原木色的餐桌和餐椅让餐厅的整个空间显的干净简洁。

世代公园里-61平-现代风格-主卧室1.jpg 世代公园里-61平-现代风格-主卧室2.jpg

时代公园里61平2居室现代风格林凤装饰的卧室空间与客厅空间大体相似,但多出一些亮色,这些亮色会在清晨使人心情舒畅,缓解业主心情,空间内不需太多装饰性柜子,宽敞的卧室空间才是提高舒适度最好的选择,灯具在空间内起到了气氛的点缀作用。

世代公园里-61平-现代风格-卫生间1.jpg 世代公园里-61平-现代风格-卫生间2.jpg

时代公园里61平2居室现代风格林凤装饰的卫生间用了灰色的瓷砖铺满了整个空间不会显得拥挤,且有美观度,由于卫生间空间较小淋浴区域没有放置浴屏但是区域的合理分化使卫生间使用起来宽敞舒适,由于卫生间面积较小洗衣机放在了门的后方但是不会影响到洗衣。

世代公园里-61平-现代风格-厨房1.jpg 世代公园里-61平-现代风格-厨房2.jpg

时代公园里61平2居室现代风格林凤装饰的厨房是开放式式厨房,由于空间很大,所以将冰箱做嵌入式,不仅实用还增加美观度,通过整体规划,使动线更为合理。

世代公园里-61平-现代风格-玄关.jpg

时代公园里61平2居室现代风格林凤装饰的玄关

世代公园里-61平-现代风格-平面图.jpg

案例设计师

林凤装饰设计师

设计师:林凤装饰设计师

从业时间:11年

设计理念:为生活增加灵魂,描绘颜色。适合的才是合适的!

预约设计师

算算你家装修多少钱

报名即享丰厚赠品,享半价装修

免费报价
咨询热线:400-656-9909
20190221103704574636.jpg

精品设计案例

20180612134930523248.jpg 服务号二维码.jpg