立即预约 立即预约
免费定制整装家居

免费定制整装家居

一站置家 全程无忧 一省到底
hide.png

当前位置: 首页 > 装修案例效果图 > 金地长清湾

金地长清湾 185平 美式风格效果图

收藏
案例风格 美式 案例户型 三居 案例面积 185平米
楼盘名称 金地长清湾 设计师 林凤装饰设计师 案例类型 改善性住宅

设计理念:跟业主沟通的过程中,了解到业主喜欢美式风格,根据男女主人的需求整体搭配以灰色加白色为主基调,整体搭配虽然不是浓墨重彩,但是在淡雅之中有变化,凸显家的温暖对生活的敬意。

客厅
第1张
餐厅
第1张
卧室
第1张
第2张
卫生间
第1张
第2张
厨房
第1张
衣帽间
第1张
过廊
第1张
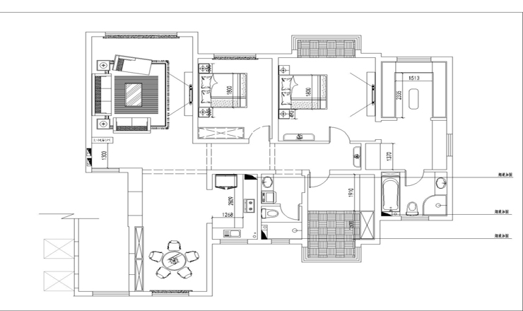
户型图
第1张
  • 案例详情

金地长青湾-185平-新美式-客厅.jpg

金地长清湾185平3居室美式风格林凤装饰的客厅整体以灰色白色黄色蓝色为主,挂画进行装饰,电视背景墙进行简单的设计做出石膏线带有凹凸的层次感。典雅的颜色,简约又不简单的装饰显得流畅自然,一气呵成。

金地长青湾-185平-新美式-餐厅.jpg

金地长清湾185平3居室美式风格林凤装饰的餐厅的地砖与客厅相呼应,装饰画增加色彩使空间更加丰富,整体干净整洁。

金地长青湾-185平-新美式-客卧.jpg 金地长青湾-185平-新美式-主卧.jpg

【主卧室说明】卧室主题以暖色为主,灰色调为基底。在卧室背景墙上运用石膏线的设计,使墙面更有层次感更加丰富。地面采用暖色地板,与整个色调相呼应。在全屋调性一致的前提下,带来了视觉上的丰富感

金地长青湾-185平-新美式-公卫.jpg 金地长青湾-185平-新美式-主卫.jpg

金地长清湾185平3居室美式风格林凤装饰的卫生间以干湿分离的形式展现,灰色的瓷砖,别样的素雅情怀卫生间显得非常简单大方。

金地长青湾-185平-新美式-厨房.jpg

金地长清湾185平3居室美式风格林凤装饰的厨房的地面墙面选用表面光洁,易清理的材料,吊柜增加储物空间。简单,便捷,卫生,舒适。

金地长青湾-185平-新美式-衣帽间.jpg

金地长清湾185平3居室美式风格林凤装饰的衣帽间

金地长青湾-185平-新美式-走廊.jpg

金地长清湾185平3居室美式风格林凤装饰的过廊

金地长青湾-185平-新美式-平面图.jpg

案例设计师

林凤装饰设计师

设计师:林凤装饰设计师

从业时间:11年

设计理念:为生活增加灵魂,描绘颜色。适合的才是合适的!

预约设计师

算算你家装修多少钱

报名即享丰厚赠品,享半价装修

免费报价
咨询热线:400-656-9909
20190221103704574636.jpg

精品设计案例

20180612134930523248.jpg 服务号二维码.jpg