立即预约
免费定制整装家居
一站置家 全程无忧 一省到底
设计理念:本案以简洁明快的温馨色调为主,凸显现代简约时尚感。因此,我们将总体色调设计定位于低调的浅灰色,客厅地面主要以个性的灰色实木地板,在原本平淡的空间中,增加温馨舒适感,让整体空间塑造明快的氛围。
案例详情
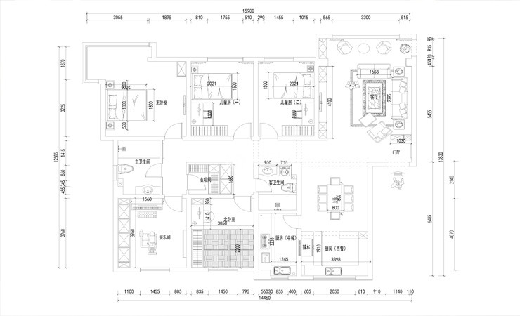
金地长青湾220平4居室现代风格林凤装饰的客厅灰色实木地板将总体色调与视觉效果连贯户型。家具比例风格以及色调都设计得当,使客厅空间气质均匀分布,加上抱枕、让整体空间散发出淡淡的儒雅气质。
金地长青湾220平4居室现代风格林凤装饰的餐厅是家居的中心,不仅要美观,更重要的是实用性,整体性。餐厅与厨房的空间紧密相邻,满足了使用功能又增添了空间视线互通,这样方便了就餐时对厨房的使用便捷。
金地长青湾220平4居室现代风格林凤装饰的主卧室功能齐全,线条明快,给人视觉、精神上的享受,再加上灯光的点缀,使整个卧室空间舒适温馨。
金地长青湾220平4居室现代风格林凤装饰的卫生间统一色调仿大理石瓷砖铺贴让空间显得简洁,宽大的洗漱镜大大增加了卫生间的空间感,干湿分离。
金地长青湾220平4居室现代风格林凤装饰的业主是一位热情好客的人,对厨房的要求很高,相较于中厨,他更偏向于西厨,但由于父母偶尔来往,于是定制了一个中厨,中厨整体橱柜连贯清晰,提高利用率及方便业主使用。西厨的装修整体有一种静谧感,大理石的吧台设计,搭配着简单的木色柜体,显得十分的温馨。
精品设计案例
设计说明:
三室两厅一厨两卫,高层整体采用美式风格,色调以深色为主,体现美式的居家感和温馨感。
设计说明:
本案业主为年轻时尚小两口,所以我们考虑到未来想要给未来宝宝一个温馨舒适的一个房间,所以本案整体采用现代风格的手法,运用颜色,来打造整体空间的设计感及时尚感
设计说明:
本案以北欧风格为主题的设计,北欧风格能以现代、简洁、自然的特点俘获人心,所营造出来的生活氛围会让人倍感舒适与自在。
设计说明:
客户是一名成功人士,对于家的执念就是简单干净,客户衣服比较多,所以把每个空间都做了大衣柜,并且融入到设计里