立即预约 立即预约
免费定制整装家居

免费定制整装家居

一站置家 全程无忧 一省到底
hide.png

当前位置: 首页 > 装修案例效果图 > 新湖御和园

新湖御和园 400平 美式风格效果图

收藏
案例风格 美式 案例户型 别墅 案例面积 400平米
楼盘名称 新湖御和园 设计师 孟凡玉 案例类型 改善性住宅

设计理念:本方案为古典美式风格,美式风格起源于欧洲,浪漫又失怀旧 ,华丽而又高雅。家具色彩以胡桃木色为主,墙面使用经典木饰面造型配以木线条角花点缀,天花采用石膏板造型吊顶,融合辅助光源理念,主灯主要用来装饰,以筒灯和灯带来照明整个空间。

客厅
第1张
第2张
第3张
餐厅
第1张
卧室
第1张
第2张
第3张
第4张
卫生间
第1张
厨房
第1张
户型图
第1张
第2张
第3张
  • 案例详情

新湖御和园-400平米-美式风格-客厅.jpg 新湖御和园-400平米-美式风格-客厅首图.jpg 新湖御和园-400平米-美式风格-偏厅.jpg

新湖御和园400平4居室美式风格别墅林凤装饰的客厅分为正厅和偏厅,中间以屏风想隔,正厅以会客,家人休息,看电视等功能为主,偏厅以休闲,钢琴演奏,品茶为主,整体色彩以胡桃木色为主色调,精致的皮木结合沙发搭配波斯织物靠垫,正厅天花为外方内八角式造型配以实木角花,体现正厅的华丽感。

新湖御和园-400平米-美式风格-餐厅.jpg

新湖御和园400平4居室美式风格别墅林凤装饰的餐厅地面采用理石以风车形图案拼贴,无边线设计,体现出餐厅空间的豪迈大气,顶部改建成挑空方案,虽然面积上有些浪费,但却完美营造出美式别墅的大方豪迈,搭配古典洛可可式餐桌及餐椅,以及入墙式雕花酒柜,科学的布局,古典的还原。

新湖御和园-400平米-美式风格-次卧.jpg 新湖御和园-400平米-美式风格-次卧1.jpg 新湖御和园-400平米-美式风格-主卧.jpg 新湖御和园-400平米-美式风格-主卧1.jpg

【主卧室说明】卧室,以功能性和实用性相结合,卧室背景墙采用白橡木护墙板配咖色壁纸,地面橡木纹理地板,相对于外部空间看起来柔和典雅,让主人可以充分休息。

新湖御和园-400平米-美式风格-主卫.jpg

新湖御和园400平4居室美式风格别墅林凤装饰的卫生间,地面采用理石菱形拼花,浅米色墙砖,双手盆,半弧形浴缸设计,体现主卫生间空间的奢华及典雅。

新湖御和园-400平米-美式风格-厨房.jpg

新湖御和园400平4居室美式风格别墅林凤装饰的厨房前面采用仿古砖斜铺,地面采用米白色地砖,调亮真个空间,红橡木色的实木橱柜,搭配中岛,兼具美观与实用。

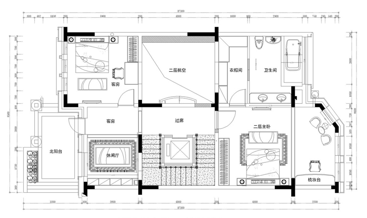
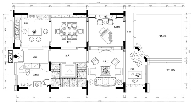
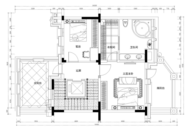
新湖御和园-400平米-美式风格-平面图.jpg 新湖御和园-400平米-美式风格-平面图1.jpg 新湖御和园-400平米-美式风格-平面图2.jpg

案例设计师

孟凡玉

设计师:孟凡玉

从业时间:10年

设计理念:好的设计不只是美,它会让人产生美的 感受,它与生活息息相关

预约设计师

算算你家装修多少钱

报名即享丰厚赠品,享半价装修

免费报价
咨询热线:400-656-9909
20190221103704574636.jpg

精品设计案例

20180612134930523248.jpg 服务号二维码.jpg