立即预约
免费定制整装家居
一站置家 全程无忧 一省到底
设计理念:简约不等于简单,现代简约风格的住宅装修设计是经过创新得出的设计和思路的延展,并不是平常的“堆砌”和简单的“摆放”,功能主义完美植入艺术的美感,让居住者身心感受美好!
案例详情
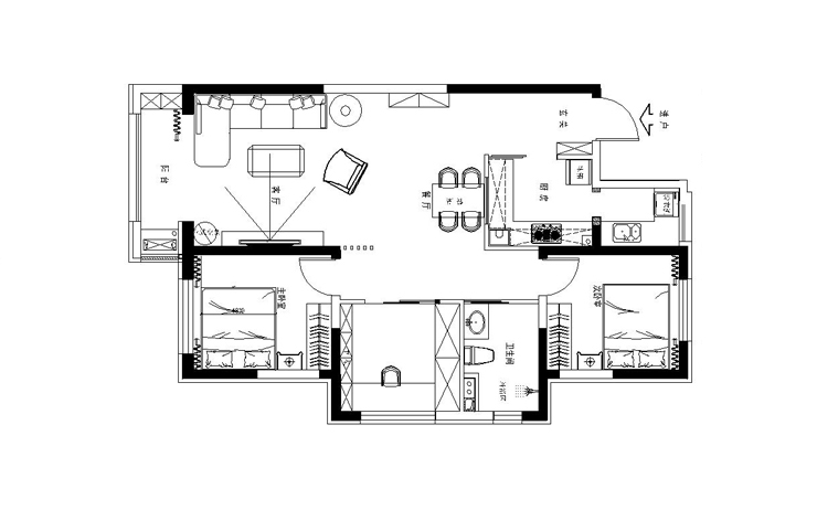
碧桂园御长白95平3居室现代简约风格林凤装饰的客厅主要以卡其色金色为主,家具选用灰色以及黑色进行搭配,空间内巧妙植入大胆亮彩色色,因业主两人对家的品质特别重视,希望回到家有个性的简约环境,所以这种搭配比较适合,并且在原户型的基础做了一些改动,扩大室内空间,对整体空间动线规划更是得到客户的极大认可。
碧桂园御长白95平3居室现代简约风格林凤装饰的餐厅区域与客厅区域紧密连,选用了金属色的餐桌和黑色皮质餐椅让餐厅的整个空间显的低调奢华、时尚品味。
【卧室说明】卧室空间与客厅空间大体相似,但多出一种高档墨绿绿,这种墨绿色会在客户入睡的时候,缓解业主心情,空间内不需太多装饰性柜子,宽敞的卧室空间才是提高舒适度最好的选择,落地灯具在空间内起到了气氛的点缀作用。
碧桂园御长白95平3居室现代简约风格林凤装饰的卫生间用了卡其与意大利灰色的瓷砖铺满了整个空间不会显得拥挤,且有美观度,由于卫生间空间较小淋浴区域没有放置浴屏但是区域的合理分化使卫生间使用起来宽敞舒适,由于空间有限,洗手台区运用大面积灯带镜子,使得整个空间视觉扩大。
碧桂园御长白95平3居室现代简约风格林凤装饰的厨房是封闭式厨房,由于空间有限,所以整体选用白橡木,让整个空间视觉放大,瓷砖运用对比灰色,高档而且耐脏,通过整体规划,使动线更为合理。
碧桂园御长白95平3居室现代简约风格林凤装饰的阳台
碧桂园御长白95平3居室现代简约风格林凤装饰的书房
碧桂园御长白95平3居室现代简约风格林凤装饰的玄关
碧桂园御长白95平3居室现代简约风格林凤装饰的过廊
精品设计案例
设计说明:
三室两厅一厨两卫,高层整体采用美式风格,色调以深色为主,体现美式的居家感和温馨感。
设计说明:
本案业主为年轻时尚小两口,所以我们考虑到未来想要给未来宝宝一个温馨舒适的一个房间,所以本案整体采用现代风格的手法,运用颜色,来打造整体空间的设计感及时尚感
设计说明:
本案以北欧风格为主题的设计,北欧风格能以现代、简洁、自然的特点俘获人心,所营造出来的生活氛围会让人倍感舒适与自在。
设计说明:
客户是一名成功人士,对于家的执念就是简单干净,客户衣服比较多,所以把每个空间都做了大衣柜,并且融入到设计里