立即预约 立即预约
免费定制整装家居

免费定制整装家居

一站置家 全程无忧 一省到底
hide.png

当前位置: 首页 > 装修案例效果图 > 中海和平之门

中海和平之门 89平 混搭风格效果图

收藏
案例风格 混搭 案例户型 二居 案例面积 89平米
楼盘名称 中海和平之门 设计师 孟凡玉 案例类型 改善性住宅

设计理念:本案以简洁明快的设计风格 打造了一个对比强烈,质感鲜明的现代居住空间,主要以墨绿色为主色调,在地面,厨房等位置大量使用,优雅且时尚。吊顶的设计更是以简单且有创意的造型处理,区别于普通常见的边棚造型,既满足了功能使用,又不失简洁大气。增添了空间的层次感,更使灯光多元化。

客厅
第1张
餐厅
第1张
第2张
卧室
第1张
第2张
卫生间
第1张
第2张
厨房
第1张
阳台
第1张
门厅
第1张
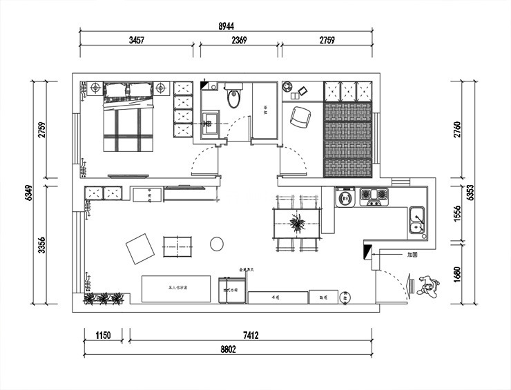
户型图
第1张
  • 案例详情

和平之门-89平-现代混搭风格-首图.jpg

中海和平之门89平2居室现代混搭风格林凤装饰的客厅部分以墨绿色为主色调,运用对比色来强调空间,饱满的绿植提升了家的自然气息,让工作休息之余,充分舒展身心。橙黄色的沙发与主色调形成鲜明对比。

和平之门-89平-现代混搭风格-餐厅 (2).jpg 和平之门-89平-现代混搭风格-餐厅 (4).jpg

中海和平之门89平2居室现代混搭风格林凤装饰的餐区厨房处为业主重新规划了格局,添加了转角的吧台,使得餐厅有更多储物及休闲空间,又巧妙的拉伸了厨房的空间感,颜色上使用了主体色灰蓝,打破了千篇一律的暖色就餐区,使客餐厅整体更加协调统一。

和平之门-89平-现代混搭风格-次卧室.jpg 和平之门-89平-现代混搭风格-客厅 (11).jpg

中海和平之门89平2居室现代混搭风格林凤装饰的卧室空间延续了一贯的墨绿色调,让高级饱和绿展现出它冷静柔和的另一面,错拼的原木色地板让整个空间更加的年轻,灵动。

和平之门-89平-现代混搭风格-卫生间 (1).jpg 和平之门-89平-现代混搭风格-卫生间 (2).jpg

中海和平之门89平2居室现代混搭风格林凤装饰的卫生间延续了一贯的黑白灰风格,冰冷的理石配以金属装饰条让卫浴空间看起来更加的整洁,干净,样条简单的小花砖灵动了整个卫生间,让沐浴泡澡变得生动。

和平之门-89平-现代混搭风格-厨房.jpg

中海和平之门89平2居室现代混搭风格林凤装饰的厨房以AB版的橱柜配色设计让厨房空间色彩对比鲜明,在操作台形式上选择了U型橱柜设计,增加厨房收纳,开放式厨房设计使得整个空间看起来更加开敞明亮,冰箱安置到厨房与餐厅之间,食材拿取方便,又避免了冰箱沾染油烟。

和平之门-89平-现代混搭风格-阳台.jpg

中海和平之门89平2居室现代混搭风格林凤装饰的阳台

和平之门-89平-现代混搭风格-玄关.jpg

中海和平之门89平2居室现代混搭风格林凤装饰的玄关

和平之门-89平-现代混搭风格-平面图.jpg

案例设计师

孟凡玉

设计师:孟凡玉

从业时间:10年

设计理念:好的设计不只是美,它会让人产生美的 感受,它与生活息息相关

预约设计师

算算你家装修多少钱

报名即享丰厚赠品,品质装修

免费报价
咨询热线:400-656-9909
20190221103704574636.jpg

精品设计案例

20180612134930523248.jpg 服务号二维码.jpg